L’ identità il più delle volte non è dove pensiamo essa sia. In ambito urbano e architettonico un caso lampante di questa affermazione la troviamo in Macedonia, a Skopje. Capitale della Repubblica di Macedonia, Skopje nel 1963 fu epicentro di un grande terremoto che, oltre a causare 1070 vittime e più di 3000 feriti, distrusse l'80% dell'allora centro urbano, che venne in seguito ricostruito seguendo le linee guida di un piano redatto da Kenzo Tange con il sostegno delle Nazioni Unite.
Oggi, con un’operazione politica partita alcuni anni fa atta a ricostruire un'ipotetica identità storica risalente ad Alessandro Magno, l'attuale governo macedone sta effettuando una revisione, per non dire rimozione, del progetto di Tange. L'architettura brutalista che Tange aveva immaginato e realizzato con il supporto dell'Istituto di Progettazione Urbana di Zagabria, rischia di essere la vittima sacrificale per un pastiche
falso-storico con cui l’attuale governo intende “ricostruire” l’immagine identitaria dell’architettura macedone. E le sue uniche tracce potrebbero rimanere esclusivamente quelle impresse in alcuni reportage fotografici.
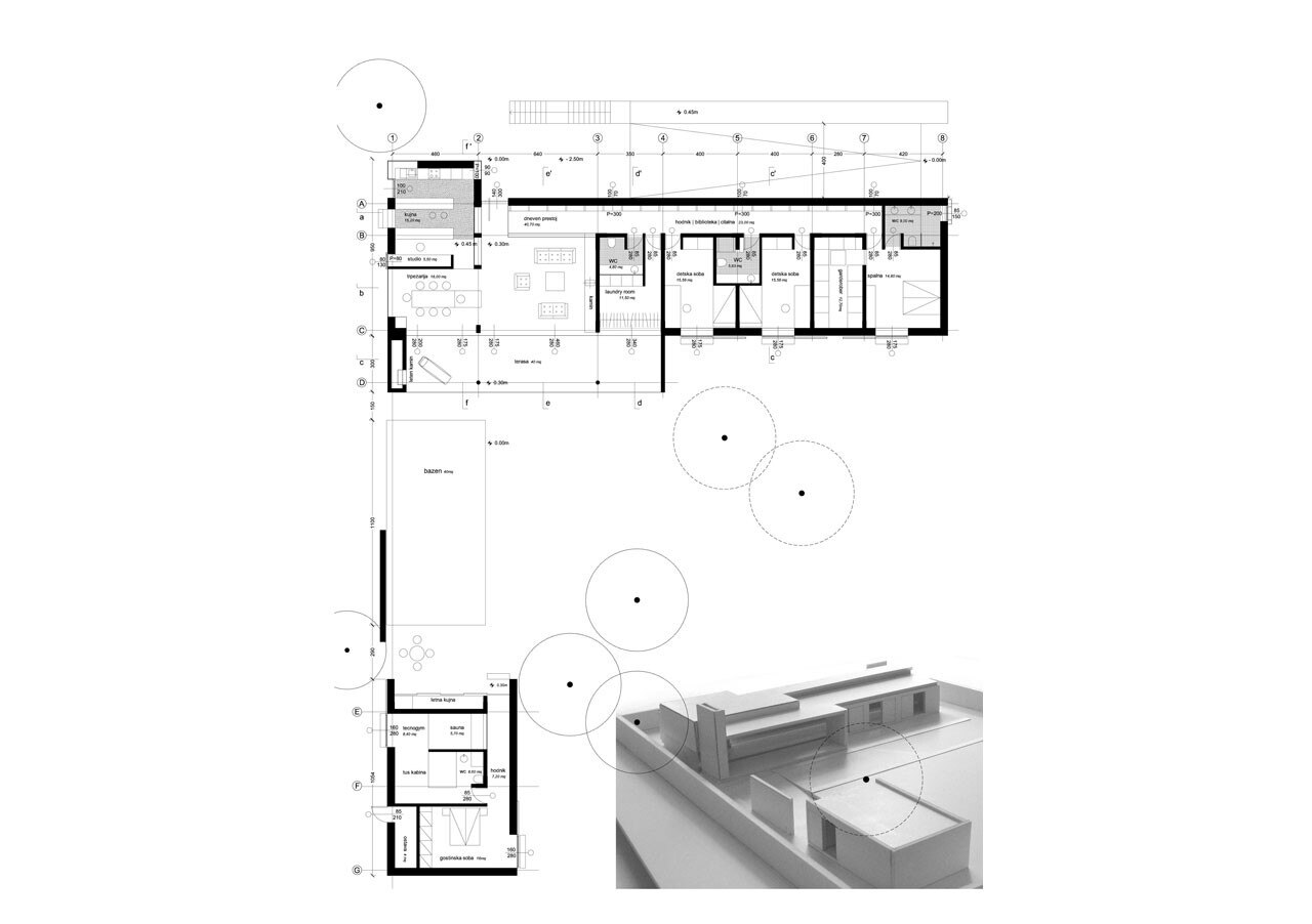
In questa corrente si inserisce a pieno titolo il progetto per la casa GD di INOUT architettura, un giovane atelier di architettura fondato da Mario Benedetto Assisi, architetto macedone di origine italiana, con Valentina Milani.
La villa è quindi un blocco di confine in cui si alternano il verde e i volumi residenziali che delimitano il cortile centrale.
L'impianto così configurato genera una sorta di landscape privato interno al lotto, una sequenza di “fasce” che da est a ovest, grazie alle diverse altezze dei volumi architettonici, vanno a caratterizzare gli ambienti domestici.
dell' architettura brutalista e del Movimento Metabolista.
INOUT architettura: GD house
Località: Skopje, Repubblica di Macedonia
Area: 2,000 mq
Cliente: Georgi Dimitrov
Capo progetto: Mario Benedetto Assisi
Collaboratori: Dejan Paskalov, Ljubica Budimovska (architects), Blagoja Dimitrievmski (engineer)
Completamento: 2012
