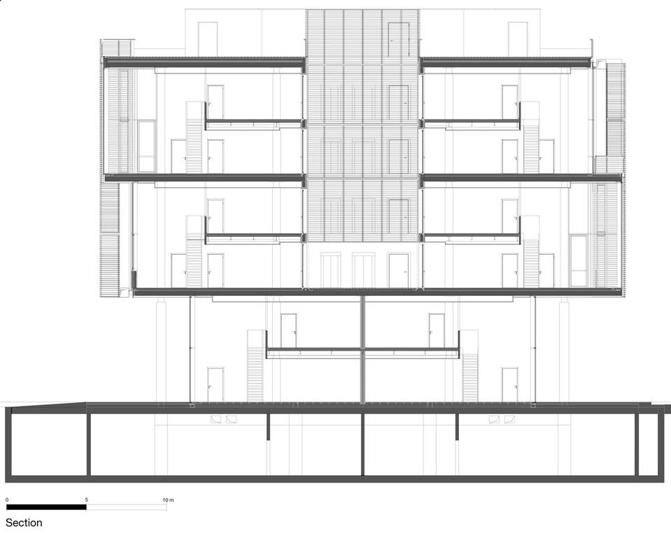
La struttura architettonica è formulata a partire dalla sua specifica posizione in una zona interna della città destinata a usi misti. L'architettura vuole rispondere a questa pluralità potenziale. Gli edifici sono costruiti su sei livelli e combinati in unità strutturali a doppia altezza (H = 7 m). Ogni unità è progettata a pianta aperta, con un mezzanino che offre la massima elasticità tridimensionale in funzione di una ventaglio di destinazioni: loft, studi, negozi, ristoranti e uffici troveranno spazi pronti a essere progettati su misura per i loro scopi specifici. Destinazioni miste che culminano, sulla copertura piana, in un giardino pensile con piazze interne che permettono alla vista di spaziare sull'orizzonte.
Energia: una visione complessiva ha guidato la strategia progettuale nel realizzare un'architettura attentamente coordinata con gli impianti, in modo da ottenere la massima efficienza energetica. Sfruttamento geotermico delle acque sotterranee, comfort interno basato su pannelli radianti nei solai e ventilazione eccellente; materiali concepiti in modo puramente funzionale: vetro, legno e anche vegetazione (trattata come materiale architettonico) sono previsti per evolversi nel tempo; perfino un cemento autopulente, capace di eliminare lo smog, viene usato per tutti i rivestimenti e per la muratura a vista, allo scopo di ridurre l'inquinamento nelle immediate vicinanze (contributo locale alla qualità generale dell'ambiente). Un'impostazione di sostenibilità ma non una ricetta che si possa ripetere, dato che deriva da un progetto su misura destinato a questa particolare costruzione in questa specifica collocazione.
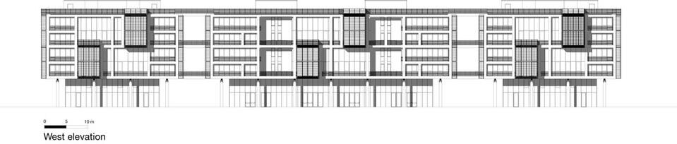
Iconicità: una facciata continua all'esterno, come a dare protezione dalla "ruvidezza" dell'ambiente urbano circostante, collega gli edifici in una striscia piana di solidi e di spazi, Ciò dà luogo a una rete bianca a maglie ortogonali, fuori scala rispetto alle altezze tra i vari livelli, che avvolge e inghiotte la trasparenza del vetro e il legno delle strutture: un oggetto indipendente che dà vita alla nuova dimensione urbana alla quale l'edificio viene percepito.
Complesso polifunzionale Tortona 37
via Tortona 37, Milano
Progetto: Matteo Thun & Partners, Luca Colombo
Committente: Pioneer Investment Management SRG spa
Area edificata totale: 30.000 m2
Progetto: 2003
Realizzazione: 2009
