With 32 million tourists in 2017, Macau has confirmed its position as Asia’s most popular entertainment destination. In this context, Zaha Hadid Architects has completed Morpheus, a 40-storey tower which hosts a complex programme within a single envelope. Zaha Hadid Architects (ZHA) was commissioned to build the hotel in 2012. At that time, foundations were already in place of a condominium tower that did not progress.
View gallery
Morpheus by Zaha Hadid Architects, Macau
ZHA designed the Morpheus tower as an extrusion of the existing abandoned foundations; using this rectangular footprint to define a 40-storey building of two internal vertical circulation cores connected at podium and roof levels where the many guest amenities were required. The high-rise exoskeleton presents a rich pattern of structural members at lower levels progresses upwards to a less dense grid of lighter members at its summit. The structure creates a continuity between interior and exterior spaces, which pattern is repeated and moulded according to the scale of the designed piece.
View gallery
\\zaha-hadid.com\HK\Data\1760_City of Dreams Macau\1760 Press\01 ZHA PRESS KIT\01 PLAN\1760_PLAN_L01 1_200 (1)
\\zaha-hadid.com\HK\Data\1760_City of Dreams Macau\1760 Press\01 ZHA PRESS KIT\01 PLAN\1760_PLAN_L01 ATRIUM 1_50 (1)
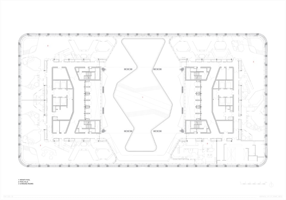
\\zaha-hadid.com\HK\Data\1760_City of Dreams Macau\1760 Press\01 ZHA PRESS KIT\01 PLAN\1760_PLAN L21 1_100 (1)
\\zaha-hadid.com\HK\Data\1760_City of Dreams Macau\1760 Press\01 ZHA PRESS KIT\01 PLAN\1760_PLAN L23 1_100 (1)
\\zaha-hadid.com\HK\Data\1760_City of Dreams Macau\1760 Press\01 ZHA PRESS KIT\01 PLAN\1760_PLAN_L30 1_100 (1)
\\zaha-hadid.com\HK\Data\1760_City of Dreams Macau\1760 Press\01 ZHA PRESS KIT\01 PLAN\1760_PLAN_L40 1_100 (1)
\\zaha-hadid.com\HK\Data\1760_City of Dreams Macau\1760 Press\01 ZHA PRESS KIT\02 ELE\1760_21_010 NORTH ELE 1_250 (1)
\\zaha-hadid.com\HK\Data\1760_City of Dreams Macau\1760 Press\01 ZHA PRESS KIT\02 ELE\1760_21_013 WEST ELE 1_250 (1)
L01-L08 LOWER ATRIUM 02 GEOMETRY 01_Morpheus-ed
L01-L08 LOWER ATRIUM 03 GEOMETRY 02_Morpheus-ed
- Project:
- Morpheus
- Program:
- mixed use, accomodation
- Location:
- Macau, China
- Architect:
- Zaha Hadid Architects (ZHA)
- Design:
- Zaha Hadid and Patrik Schumacher
- Project directors:
- Viviana Muscettola, Michele Pasca di Magliano
- Facade director:
- Paolo Matteuzzi
- Project architects:
- Michele Salvi, Bianca Cheung, Maria Loreto Flores, Clara Martins
- Project team:
- Miron Mutyaba, Milind Khade, Pierandrea Angius, Massimo Napoleoni, Stefano Iacopini, Davide Del Giudice, Luciano Letteriello, Luis Migue Samanez, Cyril Manyara, Alvin Triestanto, Muhammed Shameel, Goswin Rothenthal, Santiago Fernandez-Achury, Vahid Eshraghi, Melika Aljukic
- Interior team:
- Daniel Fiser, Thomas Sonder, Daniel Coley, Yooyeon Noh, Jinqi Huang, Mirta Bilos, Alexander Kuroda, Gaganjit Singh, Marina Martinez, Shajay Bhooshan, Henry Louth, Filippo Nassetti, David Reeves, Marko Gligorov, Neil Ridgen, Milica Pihler-Mirjanic, Grace Chung, Mario Mattia, Mariagrazia Lanza
- Concept team:
- Viviana Muscettola, Tiago Correia, Clara Martins, Maria Loreto Flores, Victor Orive, Danilo Arsic, Ines Fontoura, Fabiano Costinanza, Rafael Gonzalez, Muhammed Shameel
- Completion:
- 2018
