In a Milan where real estate prices are constantly on the rise, optimizing compact apartments —inevitably smaller than their owners would wish—has become an unavoidable design challenge. Architects Eugenio Fusarini and Ivano Viceconte, founders of the young firm Studio KIWI, tackle this issue head-on. In redesigning a 53-square-meter two-room apartment in the Città Studi district, their goal was to optimize the spatial layout, enabling flexible usage that prioritizes functionality while accommodating the dynamics of work-life balance.
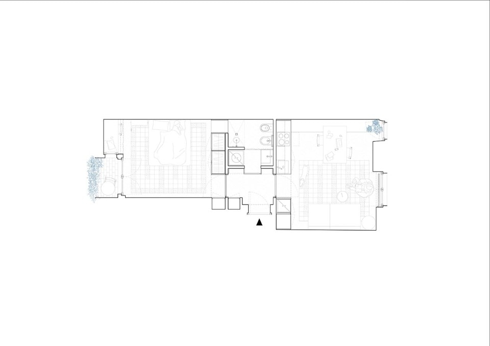
This approach guided the redesign of the floor plan. The apartment, with its dual exposure—aptly named One of Many by the architects due to its archetypal character—unfolds along its longitudinal axis. Breaking with a bourgeois taboo that dictates the bathroom door should never face the entrance, KIWI places the bathroom centrally, directly opposite the entrance door, and enhances its presence with a sliding wall that adds a theatrical touch. To the right and left, they position the kitchen counter in the living area and full-height cabinetry in the bedroom, respectively. Opposite the central block containing services and storage, a small corridor with a built-in bookshelf allows for either the isolation or integration of the living and sleeping areas.
The careful selection of finishes, including the partial restoration of original tiles and the elevation of humble materials like plywood panels, adds a personal touch to the understated aesthetic suggested by the project’s name. This approach is most evident in the bathroom: the orange floor and matching grout infuse energy into the space, lit only by indirect light, while maintaining a commitment to simplicity.
