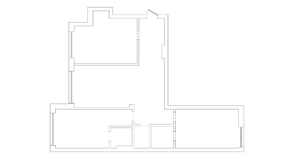
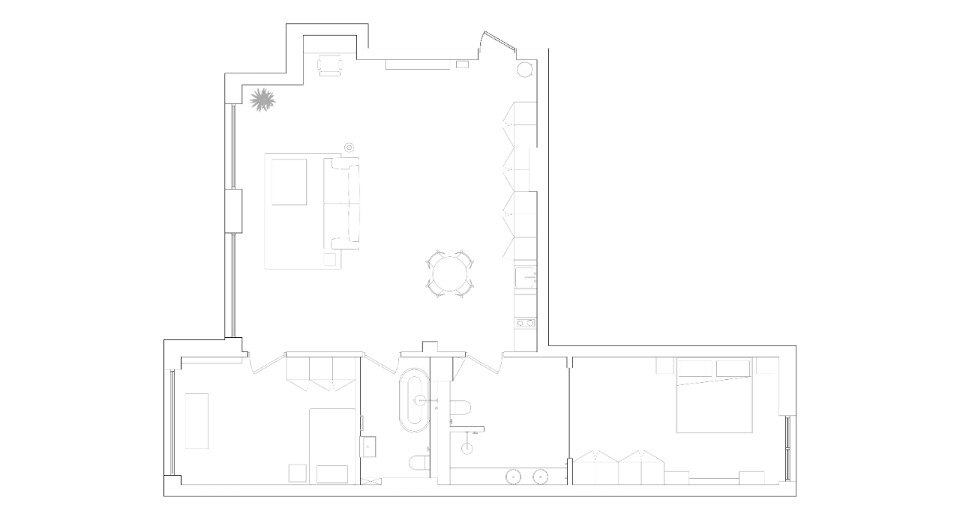
The flat renovated by Men Bureau is designed to become the scenario for a family’s activities and needs. Located in the Podol district of Kiev, in the Rybalsky residential complex, it covers 100 square metres and is divided into two areas – living and sleeping. The architects removed almost all of the existing partitions to create an open, airy space characterised by natural materials and textures.
The unification of the three bathrooms into two, more spacious ones is part of a functional reorganisation, allowing more natural light to enter. The fulcrum of the project is the open space combining kitchen, dining area, living room and a workstation. Birch plywood, micro-cement and Calcite Caribbean marble define the rooms with warm and cool tones, together with glass partitions.
- Project:
- RYB Apartment
- Location:
- Kiev, Ukraine
- Program:
- Private apartment
- Architects:
- Men Bureau
- Area:
- 100 sqm
- Completion:
- 2021
