On the eastern outskirts of Oslo, in Hellerud, Studio Et al. has transformed a 100-square-metre apartment into a minimalist exercise in design. The Rundtjernveien project involved renovating a unit in an ordinary early 1990s condominium by stripping it of everything superfluous. There are no decorations, few materials and plenty of atmosphere.
The concept is straightforward yet bold: to minimise rather than add. This approach of subtraction paradoxically enriches the space. Where there was once an anonymous interior, there is now a home that feels kos – a Norwegian word that cannot be translated, but which encompasses the pleasure of being pampered by a warm and welcoming environment. The home invites you to live among objects, not many, but those that are truly essential and meaningful. These objects are chosen to be experienced and shared.
Where there was once an anonymous interior, a home now emerges with kos – a Norwegian word with no direct translation, capturing the pleasure of being cocooned in a warm, welcoming environment, inviting you to live among the objects.
The previous plasterwork was removed to reveal the structural concrete layer, which has been left deliberately exposed. Calibrated additions have been made on top of this: fir boards arranged as low platforms for the more intimate areas and light wooden frames with fibreglass panels that diffuse natural light to the farthest corners of the house.
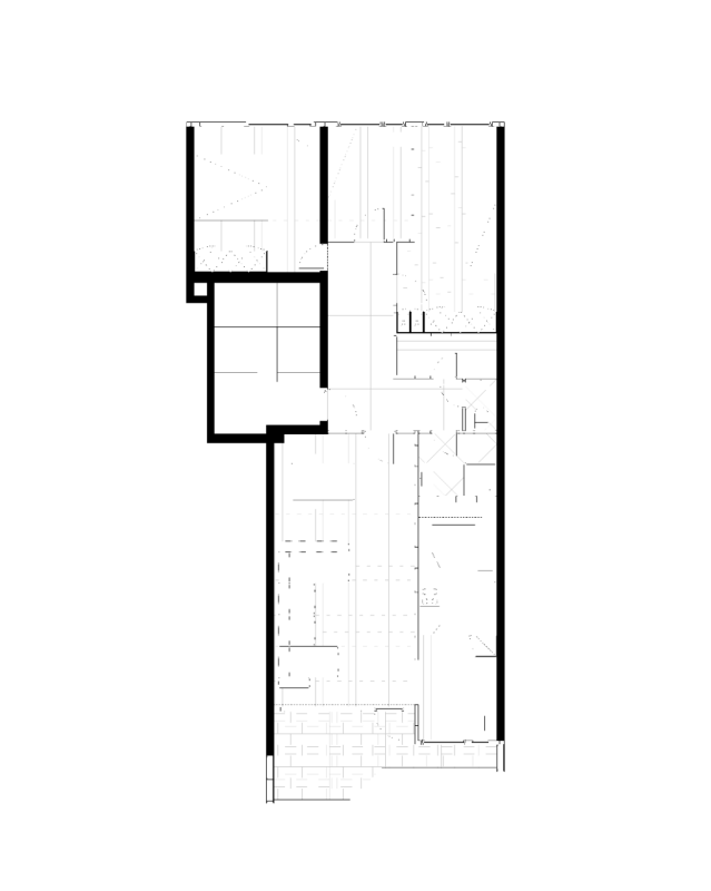
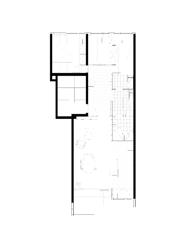
The long, narrow floor plan is crossed by a large entrance hall that acts as a visual and spatial hinge between the different spaces. At the heart of the home is a concrete kitchen island containing local aggregates, which mediates between the living and dining areas. Custom-built pine furniture creates niches and spaces for everyday activities such as sitting, tying your shoes or hanging a towel. Everything is constructed in the simplest and most direct way possible.
The result is an interior that showcases the materials for what they are, without masking them. The aesthetic is deliberately open, as if the house were designed to adapt over time. Willem Pab's photographs capture this well, showing a lived-in, authentic space where the house is in balance with the lives of its inhabitants.
