“Think Globally, Act Locally.” This mantra encapsulates the philosophy of Jeanne Gang, founder of Studio Gang in 1997 in Chicago. Today, we explore the Paris campus of the University of Chicago John W. Boyer Center, one of four international hubs of this esteemed US institution.
While the university has long maintained a presence in Paris, the new building – and Studio Gang’s first completed project in France – is larger than its former structure and avoids the sprawling gigantism typical of many university complexes. Opened just a few months ago, it is designed to support teaching and research while also fostering interaction and exchange with the host city.
In an urban sense, this project represents something entirely new – new land that we’re constructing and building upon.
Jeanne Gang
Situated near the Seine and adjacent to the Boulevard Périphérique, Paris’s encircling ring road, the building occupies a corner of the 13th arrondissement, which represents one of the last areas in Paris where architectural innovation can thrive alongside redevelopment of the existing urban fabric.
Nearby, Jean Nouvel’s Tours Duo rise with their seemingly unstable balance, while Dominique Perrault’s Bibliothèque Nationale de France opens the pages of its book-like buildings. Surrounding the University of Chicago campus is a Cartesian grid of contemporary architecture, built over the past two decades on repurposed industrial and railway land. Far from the romantic imagery of zinc rooftops and ornate facades, this neighborhood – named Paris Rive Gauche – aspires to recapture the intellectual and cultural energy of the 1950s Latin Quarter of the historic Rive Gauche, before its transformation by tourism: a vibrant ecosystem of academic life, home to approximately 30,000 students drawn by multiple university institutions.
The Paris campus reflects a new approach called “grafting,” as explored in Gang’s recent book, “The Art of Architectural Grafting” (Park Books). The book delves into a new concept of American architecture which draws from the botanical practice of joining distinct species.
“In an urban sense, this project represents something entirely new – new land that we’re constructing and building upon. While it’s not about grafting onto existing, older buildings, it does embody the idea of creating fresh ground and breathing new life into a space by building on top of what was there before," Gang explains in an interview with Domus.
Beneath the campus lies an RER metro station, which connects the city to its suburbs; its entrance – currently under renovation – is seamlessly integrated into the campus’s design and clearly visible from the University grounds.
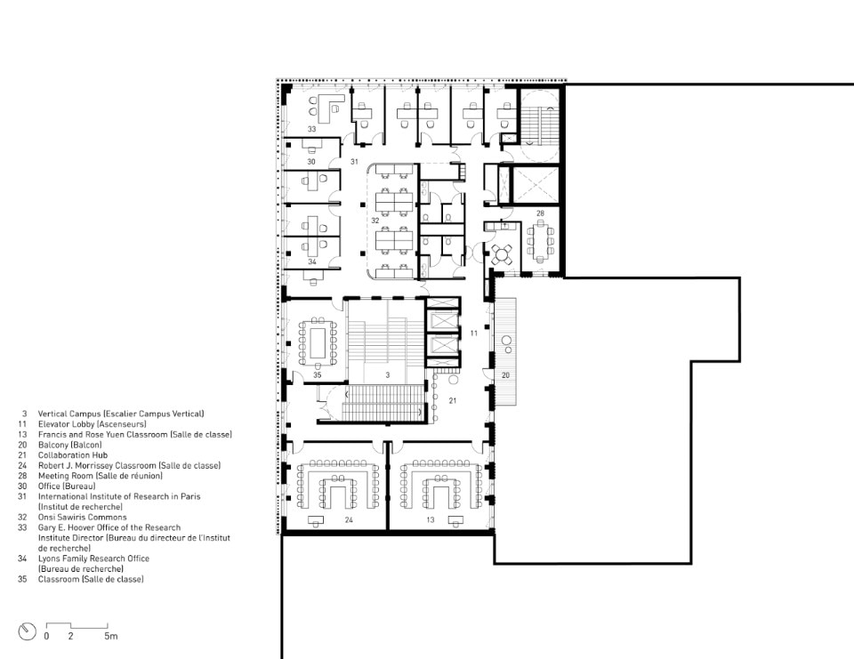
The building's facade embodies a dialogue between current and former, local and international architectural identities. Dominating its exterior are 900 cylindrical elements with a fiberglass core and limestone cladding made from Pierre de Paris, the signature stone of Haussmann’s architecture. Sourced sustainably from a quarry just 40 kilometers away, these cylinders function as both brise soleil and osmotic filter to break up the full visibility offered by the expansive glass walls enclosing offices and classrooms.
However, the appeal goes beyond the reinterpretation of the genius loci represented by the material. A similar limestone, though slightly grayer in tone, was used in the neo-Gothic building that houses the oldest and most historic hub of the University of Chicago in Illinois. Therefore, these small columns on the facade are a homage to the style and materiality of the original columns.
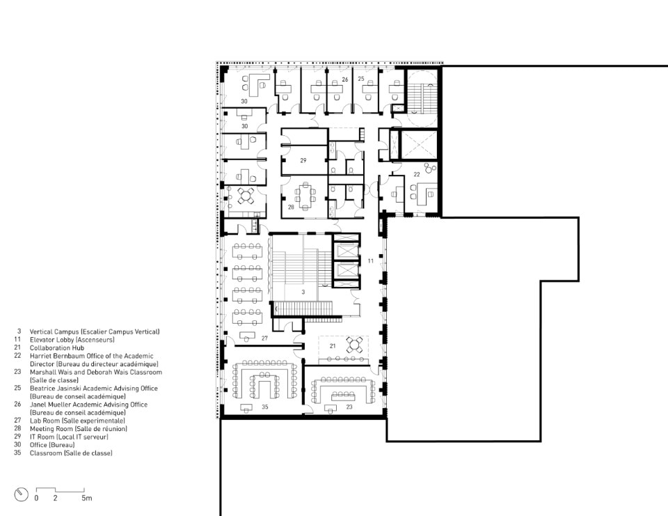
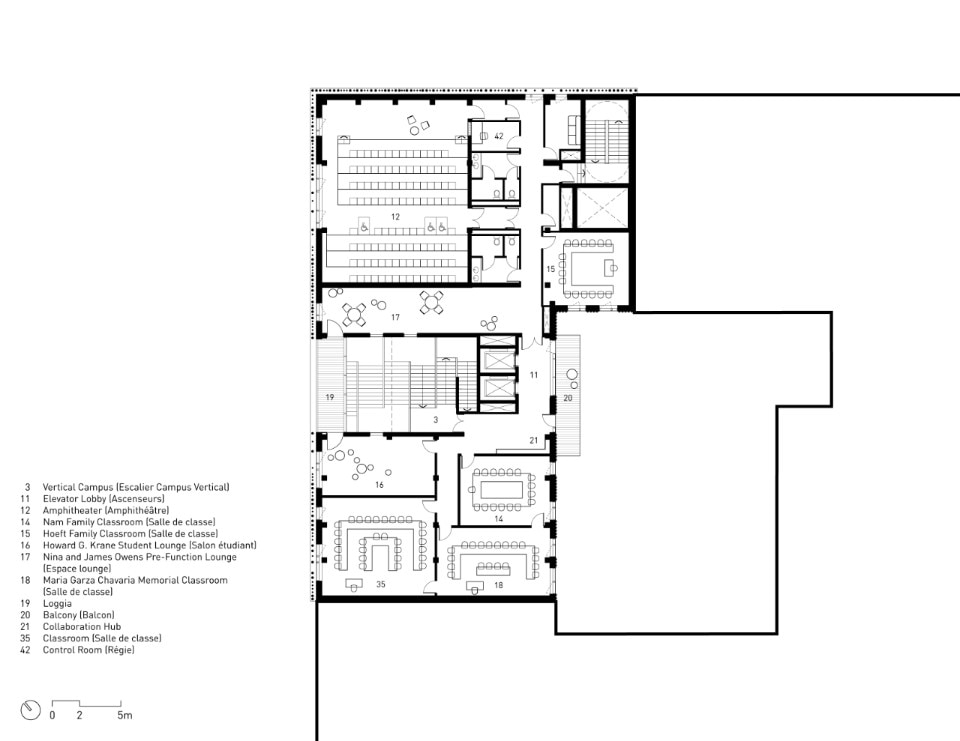
Upon entering, the building’s architecture shifts to reveal a more introspective design, intentionally contrasting – metaphorically – the sprawling horizontality of traditional American campuses, building indoors and vertically what the Parisian density imposes as a way of life.
Therefore, the concept of a “vertical campus” emerged, which takes shape through the transformation of the staircase – a traditionally utilitarian feature – into an atrium, functioning as the building’s beating heart, fostering exchange across its classrooms and spaces. Studio Gang’s design elevates the staircase into a place of physical and visual connections, promoting a sense of cohesion of the whole through openness and airiness lengthwise.
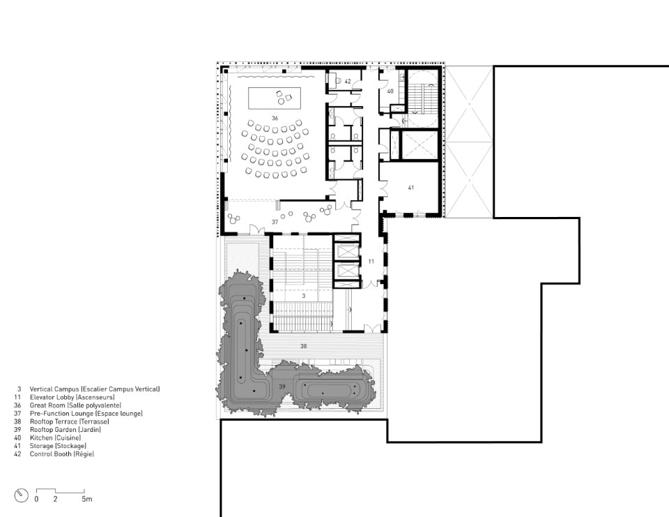
The choice of cladding materials – wood, first and foremost – enhance the warmth and enveloping character of the space while functioning as an essential sound-absorbing element. At the top of the building, a large conference room opens onto a rooftop urban garden with panoramic views of the city.
Sustainability is a cornerstone of Studio Gang’s “actionable idealism,” aligning with Paris' ambitious new bioclimatic plan set to take effect in 2024. This commitment is evident through the use of a solid wood structure ingeniously grafted onto the steel pillars of the underlying metro station, particularly effective natural ventilation, rooftop solar panels, and the grafting green spaces which encourage urban biodiversity.
“I’m one of the few Americans to choose Paris as the base for our European operations instead of London, but I deeply believe in Paris,” Jeanne Gang explains, reflecting on upcoming projects across France and Europe. A new, cultural form of grafting which will see Studio Gang and its local team, co-led by Ana Flor and Rodia Valladares, take on projects such as a new tower in the La Défense area and an office and laboratory hub in Grenoble.
Opening image: Photo Fabrice Fouillet
