This house, literally wedged into a long, narrow plot – 7m wide and 70m deep –, among warehouses and workshops partially converted into residences in Neubau, a dense and historic neighbourhood in Vienna's 7th district, looks willing to break free from the surrounding built fabric, peeping out among the buildings in search of sky and greenery.
The elongated building is in fact conceived as a hybrid: a house-garden that, unable to reach and use the wide open spaces of a typical suburban area – as it has to deal with the physical constraints of the context – finds them on the roof, among hanging gardens and planted paths.
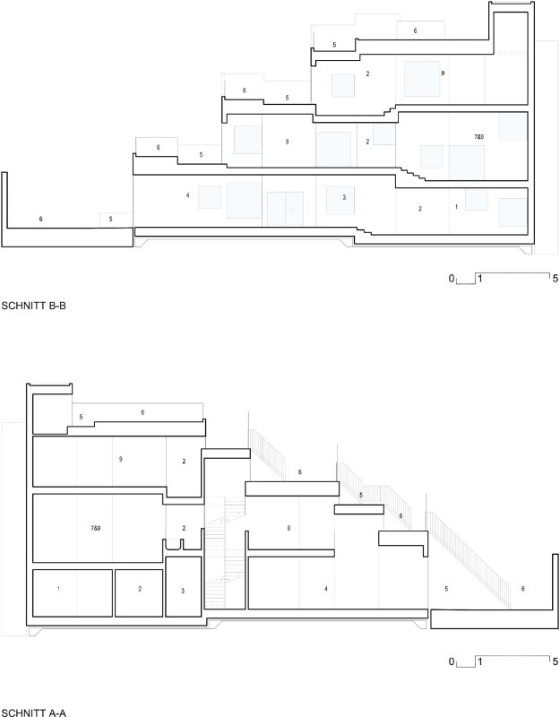
The three-storey building, with a surface area of 165 square metres, appears as a light stronghold, 4.6m wide and 24m long, with a strongly sloping terraced structure – 12 to 3.4m in height, from west to east – housing trees, shrubs, vegetation walls and lawns: the 132 sqm overall green surface guarantees considerable benefits in terms of microclimate, from cooling to rainwater recovery.
All floors expand into open spaces: the ground floor housing the communal areas, living room and study; the first floor with its multipurpose room, both a playroom and a sleeping area; the second floor with the master bedroom.
If the exterior is shaped according to the existing planimetric constraints, it is inside that the design finds its highest degree of articulation: staggered floor levels and differentiated room heights – varying from 2.10 to 6.08 m – generate interlocking games of planes and volumes, resulting in a dynamic and flexible space that winks at Adolf Loos’s Raumplan and favours a lively and irregular pattern of openings in the façade.
The final output of such combination of refined architectural priciples in both masses and open spaces is a green oasis with a rich and composite spatiality, carved out of the anonymity of the urban environment.
