Arch Orthodontic Office is a dental clinic located in a quiet residential area of Hachioji City, near Tokyo. The project, conceived by architect Kunihiko Matsuba, includes a two-story building featuring overlapping concrete blocks and a parking lot for five cars.
Six volumes of different proportions, joined in a composition reminiscent of alternating brick claddings, create a play of solids and voids on the facade. In the interiors, wood is used for floors, partitions and furniture with the aim to create a cosy space and relieve patients’ tension.
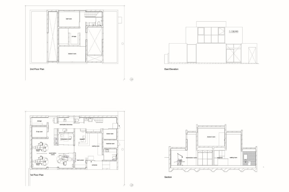
The ground floor houses reception, waiting room, a sterilisation laboratory and, arranged along a corridor with glazed partitions, examination rooms. The first floor houses the offices of the director, doctors and staff.
- Project:
- Arch Orthodontic Office
- Location:
- Hachioji City, Tokyo, Japan
- Program:
- Dental clinic
- Architect:
- Kunihiko Matsuba (TYRANT Inc.)
- Structure design:
- Tatsumi Terado (Tatsumi Terado Structural Studio)
- Graphic design:
- Masaaki Kuroiwa (GALLE GRAPHICS)
- Area:
- 118.69 sqm
- Completion:
- 2021
