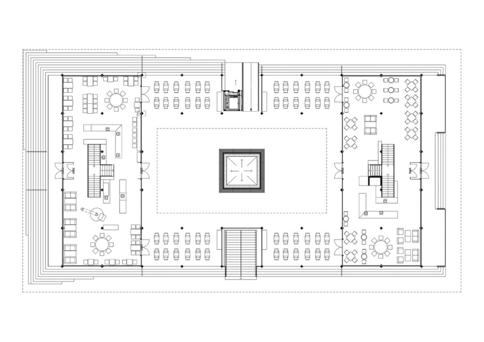
The new lightweight wooden pavillion in Tammsaare Park stands on the foundations of Tallinn's old market, built in 1899 and destroyed during World War II. It is situated between the Estonian National Opera House and the iconic Viru Hotel and rests on the surviving basement level of the historic building, tracing its longitudinal layout organized around a large central hall.
Drawing on classical compositional references, the building is thus conceived as a courtyard pavilion, raised on a stepped podium and protected by a tapered projecting roof.
The structure of cross-shaped pillars made of laminated wood is filled with glass surfaces to accommodate a restaurant on the short fronts, while the long fronts are left open and walkable.
The architectural elements of the podium and the roof seem to mirror each other: the steps of the podium and the design of the floor on the ground are reflected in the modular roof characterized by self-supporting stepped vaults. The continuity of these elements thus creates a space that effortlessly floats from the inside to the outside under the same roof.
