As a financial crisis threatens Lebanon and an indignant protest movement grips the country, especially after the massive disaster of Beirut explosion last October, the opening of a new bank building emerges as an unlikely architectural symbol of renewal. And yet, with the design of the new LSB bank headquarters, the architects' challenge is to subvert the antiquated building code in favour of a conscious urban growth, able to redefine the relationship between the inevitable urban expansion and the reactivation of inclusive spaces for social interaction.
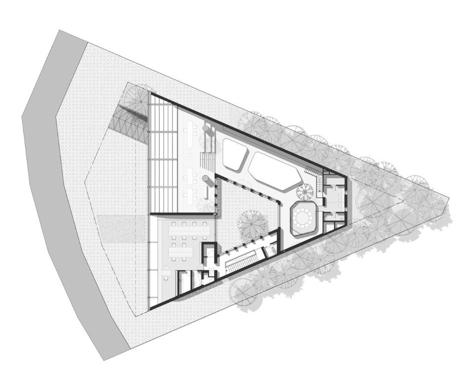
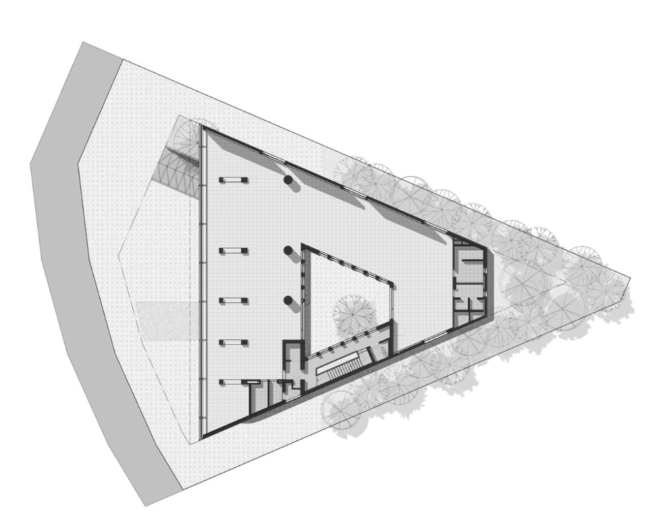
The building, located in a redeveloped agricultural area in the city of Tyre, on the southern coast of Lebanon, takes the form of a large concrete parallelepiped hollowed out by a trapezoidal courtyard in the centre and lightened by a curved glass wall. The projecting planes on this curved south-facing front, angled according to sun exposure, minimise the footprint of the building on the ground and define an open, flexible shaded plaza directly connected to the trapezoidal inner courtyard.
The visual connections recreated within the building respond to the context and orientation, further emphasising the role of collective spaces. The inner courtyard creates a visual channel between the multi-level offices, the central circulation area and the sky. The curved main façade hovers like the hull of a boat over the square to create a direct visual dialogue between the offices and the outside. Windows on the east and west facades frame the distant landscape and limit solar radiation.
