Maximum comfort, efficiency and privacy is what professional football players need for their physical preparation throughout the season. A club at the highest level like F.C. Internazionale – which in recent years has completely renewed its brand – cannot neglect the architecture of its sports centres, where multi-millionaire players spend a lot of time.
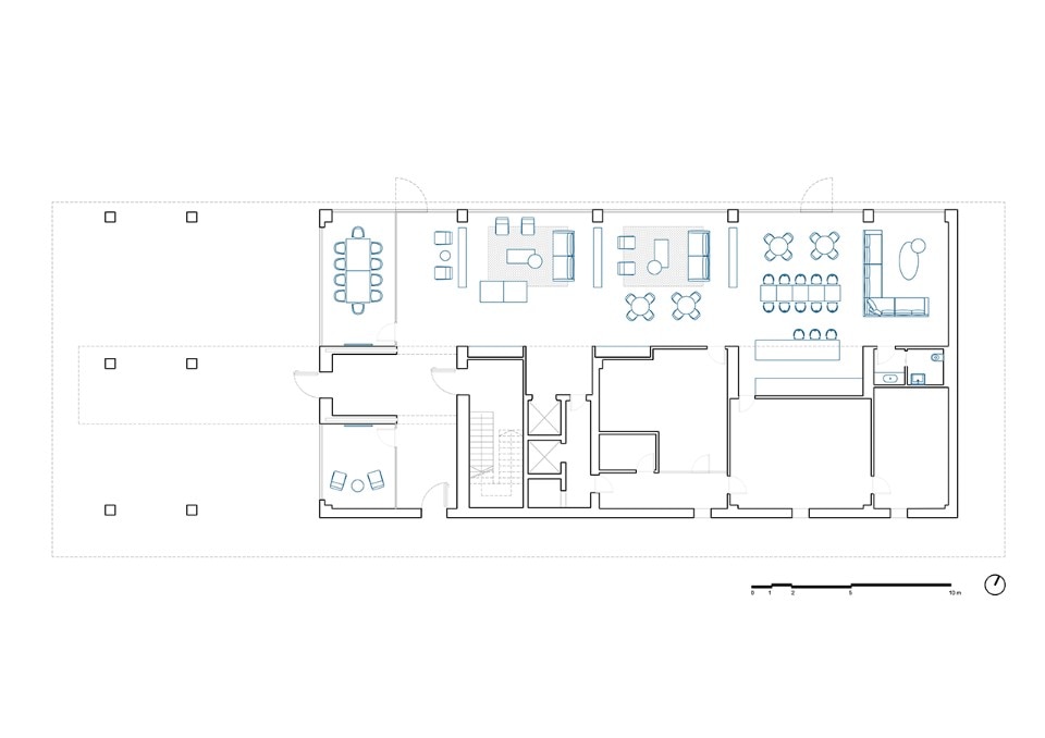
The club has entrusted Coima Image with the task of adding a new piece to the Suning Training Centre, better known as the “Pinetina”, located in Appiano Gentile, in the province of Como. The new Club House is a three-storey building with an essential style, opening onto the playing fields, outdoor lounge areas and greenery around it.
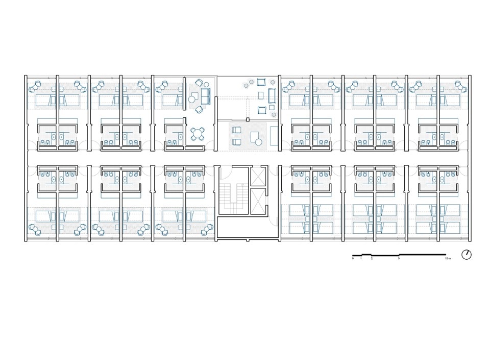
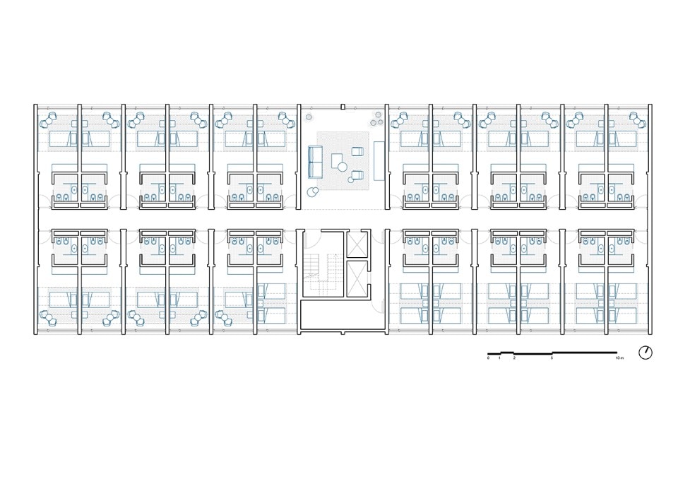
A fundamental characteristic of the building is its prefabricated structure made of cement and wood. On the ground floor beams, pillars, floors and stairs are made of prefabricated concrete, while the following levels have X-lam structure, with three-dimensional modules that have been completely finished in the factory.
Each module is composed of two bedrooms and two bathrooms, with respective entrances and a plant cavity. The interior spaces are brought to the building site with the various finishes of tiles, wall coverings, sanitary ware, faucets, lighting points... This choice made it possible to reduce the duration of the building site to just six months, lowering not only costs but also noise levels and the number of people inside the work area.
- Project:
- Club House FC Internazionale
- Architect:
- Coima Image
- Location:
- Appiano Gentile, Italy
- Completion:
- 2020
