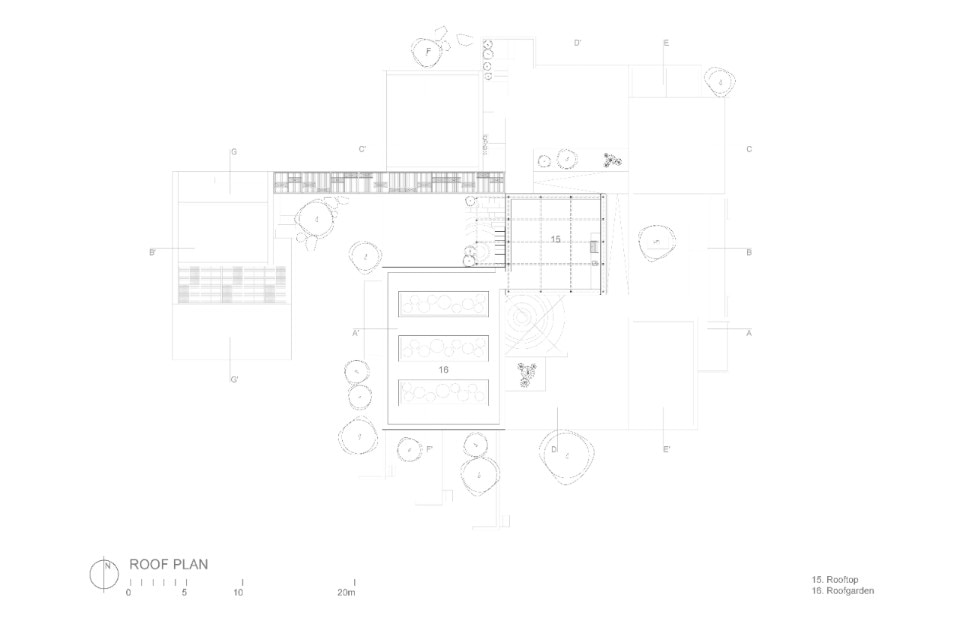
Casa Ballena emerges from the semi-desertic hills that surround Puerto Los Cabos, in Baja California Sur (Mexico). Located just half-an-hour drive from the very popular Cabo San Lucas, a dreamlike beach on the Pacific Ocean, it appears as group of seven buildings in rammed earth punctuated by patios and pergolas on different levels, following the natural slope.
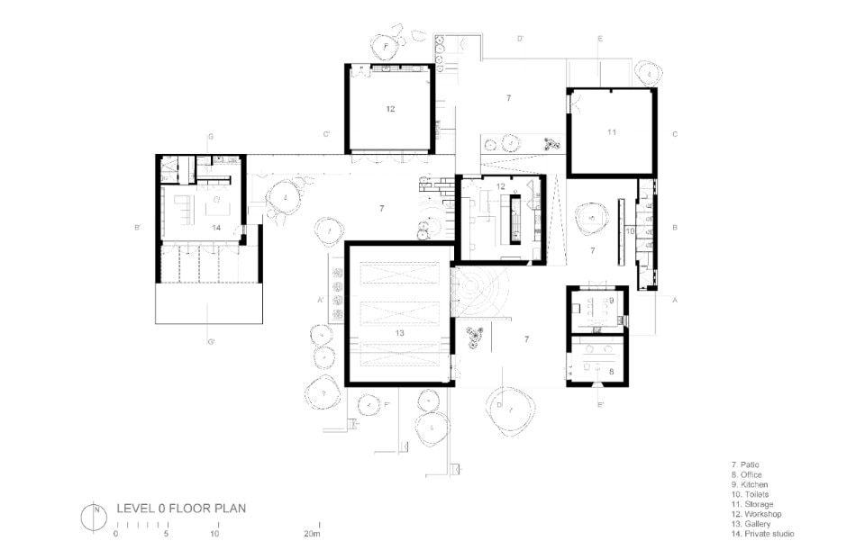
The building complex was born to host artists-in-residence with the best possible formula, that is to say tailored workshops, a museum open to the public to showcase the artists’ work and leisure spaces immersed in silence, to help creativity and meditation.
The client, an artist, assigned the design to Mexican architecture studio Rima, led by architects Gerry Rivero and Maritere Rivero, very active in the region with multidisciplinary projects, together with architect Francisco Lopez Guerra. The characterizing element is the texture of the walls in rammed earth, obtained directly from the excavations for the foundations. The seven volumes are strategically distributed in a chessboard pattern and on the one hand they generate protected courtyards that are ideal for bringing the workshop activities outdoors, on the other hand they allow light openings on the best perimeter side depending on the functions that each building must perform. The workshops, for example, all face north with the exception of the painting ateliers, while the residences, offices and lounge areas room face south-west.
- Project:
- Casa Ballena
- Program:
- mixed-use building
- Architects:
- Rima
- Design team:
- Gerry Rivero, Maritere Rivero, Antonio Gil
- Construction team:
- Noé Cante, Xitlalli Ceseña, Carlos Espino, Pedro Ricardez, Jorge Montaño
- Design collaboration:
- Francisco L. Guerra
- Location:
- Puerto Los Cabos, Baja California Sur, Mexico
- Completion:
- 2020
