The preservation to the present day of the tiny San Rocco church in Rotello, in the vicinities of Campobasso, was anything but to be taken for granted. A secondary monument of a secondary, depopulated village in the inland of Molise, an ancient piece of heritage from the sixteenth century, and yet one which is quite ordinary in the Italian context, it could survive mostly thanks to its conversion into an auditorium, in the 1960s.
In 2019, Luigi Valente and Mauro Di Bona accomplish its global renovation, including the upgrading of its structural, technical and functional performances. The exterior is virtually unchanged, in part to comply with the guidelines suggested by the local Soprintendenza: the unassuming stone walls are integrally preserved, as well as the restrained decorations, barely dignifying the church in comparison to the surroundings residential rows.
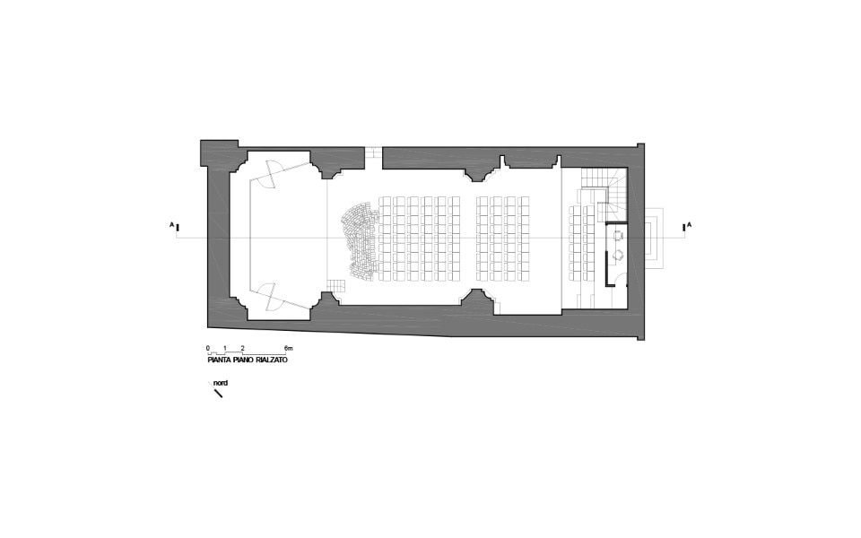
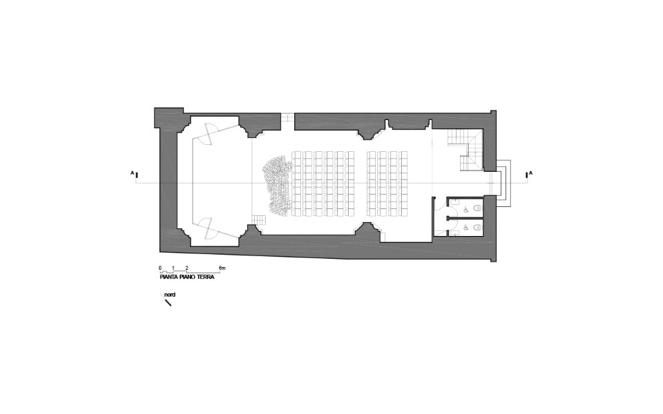
Regulations allow a greater freedom on the inside, where the project shows its own original language. Around the dense tiers formed by a hundred black seats, horizontal and vertical surfaces are completely whitened, their variations in materials and volume simplified as a sober sequence of chiaroscuro.
A few fragments surface from this unifying layer: the roof’s wooden beams, reconstructed after the demolition of the modern, modular false ceiling, and above all a portion of the original floor, reappearing as the walking level has been lowered to its original position. This stone parterre is the only chromatic exception of the entire aisle, hinting at the lost materiality of this place and defining an appropriate buffer zone between the audience and the scene.
- Project:
- restoration and transformation of San Rocco's church in a theatre
- Program:
- theatre
- Location:
- Rotello, Italy
- Architects:
- Luigi Valente, Mauro Di Bona
- Design team:
- Giovanni Alberto De Paolis, Domenico Flocco
- History consultant:
- Francesco Valente
- Materials consultant:
- Emanuela Cocozza
- Completion:
- 2019
