The eternally present motto by Le Corbusier about the “masterly, correct and magnificent play of masses brought together in light,” as well as the stone volumes of Fernand Pouillon’s Mediterranean projects – the sunny seafronts of Marseille, Toulon and Les Sablettes, for instance – echo in the recent project by Stéphane Fernandez – from the Atelier Fernandez & Serres – for the extension of a school in Broussailles, Cannes.
The building is designed as a composition of compact travertine blocks. Stone plays a leading role on a symbolic level, recalling the timeless relationship linking humankind with matter and the earth, on a formal plan. The powerful light of the south neatly outlines the architectural solids while at the same time vibrating over their rough surface, and as a factor of an intuitive, ancient, non-technological sustainability, the remarkable thickness of the side walls optimises the building’s thermal inertia, protecting its interiors from the summer heat.
View gallery
Stéphane Fernandez designs a school made of stone on the Mediterranean coast
Stéphane Fernandez, school complex in Broussailles, Cannes, France, 2018. Photo © Stéphane Aboudaram | WE ARE CONTENT(S)
Stéphane Fernandez designs a school made of stone on the Mediterranean coast
Stéphane Fernandez, school complex in Broussailles, Cannes, France, 2018. Photo © Stéphane Aboudaram | WE ARE CONTENT(S)
Stéphane Fernandez designs a school made of stone on the Mediterranean coast
Stéphane Fernandez, school complex in Broussailles, Cannes, France, 2018. Photo © Stéphane Aboudaram | WE ARE CONTENT(S)
Stéphane Fernandez designs a school made of stone on the Mediterranean coast
Stéphane Fernandez, school complex in Broussailles, Cannes, France, 2018. Photo © Stéphane Aboudaram | WE ARE CONTENT(S)
Stéphane Fernandez designs a school made of stone on the Mediterranean coast
Stéphane Fernandez, school complex in Broussailles, Cannes, France, 2018. Photo © Stéphane Aboudaram | WE ARE CONTENT(S)
Stéphane Fernandez designs a school made of stone on the Mediterranean coast
Stéphane Fernandez, school complex in Broussailles, Cannes, France, 2018. Photo © Stéphane Aboudaram | WE ARE CONTENT(S)
Stéphane Fernandez designs a school made of stone on the Mediterranean coast
Stéphane Fernandez, school complex in Broussailles, Cannes, France, 2018. Photo © Stéphane Aboudaram | WE ARE CONTENT(S)
Stéphane Fernandez designs a school made of stone on the Mediterranean coast
Stéphane Fernandez, school complex in Broussailles, Cannes, France, 2018. Photo © Stéphane Aboudaram | WE ARE CONTENT(S)
Stéphane Fernandez designs a school made of stone on the Mediterranean coast
Stéphane Fernandez, school complex in Broussailles, Cannes, France, 2018. Photo © Stéphane Aboudaram | WE ARE CONTENT(S)
Stéphane Fernandez designs a school made of stone on the Mediterranean coast
Stéphane Fernandez, school complex in Broussailles, Cannes, France, 2018. Photo © Stéphane Aboudaram | WE ARE CONTENT(S)
Stéphane Fernandez designs a school made of stone on the Mediterranean coast
Stéphane Fernandez, school complex in Broussailles, Cannes, France, 2018. Photo © Stéphane Aboudaram | WE ARE CONTENT(S)
Stéphane Fernandez designs a school made of stone on the Mediterranean coast
Stéphane Fernandez, school complex in Broussailles, Cannes, France, 2018. Photo © Stéphane Aboudaram | WE ARE CONTENT(S)
Stéphane Fernandez designs a school made of stone on the Mediterranean coast
Stéphane Fernandez, school complex in Broussailles, Cannes, France, 2018. Photo © Stéphane Aboudaram | WE ARE CONTENT(S)
Stéphane Fernandez designs a school made of stone on the Mediterranean coast
Stéphane Fernandez, school complex in Broussailles, site plan
Stéphane Fernandez designs a school made of stone on the Mediterranean coast
Stéphane Fernandez, school complex in Broussailles, basement floor plan
Stéphane Fernandez designs a school made of stone on the Mediterranean coast
Stéphane Fernandez, school complex in Broussailles, ground floor plan
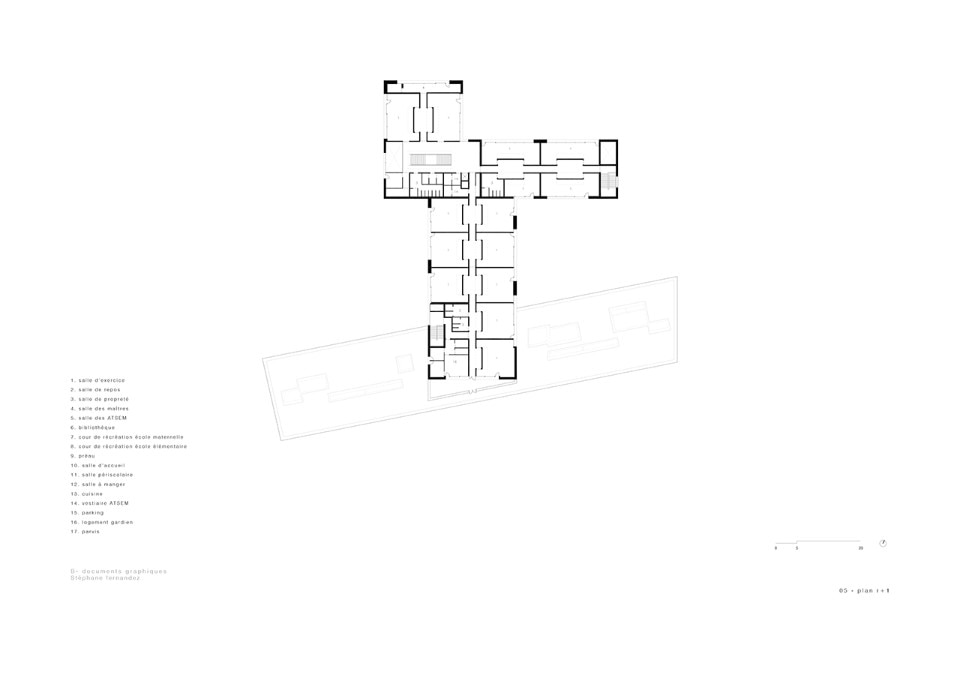
Stéphane Fernandez designs a school made of stone on the Mediterranean coast
Stéphane Fernandez, school complex in Broussailles, first floor plan
Stéphane Fernandez designs a school made of stone on the Mediterranean coast
Stéphane Fernandez, school complex in Broussailles, section
Stéphane Fernandez designs a school made of stone on the Mediterranean coast
Stéphane Fernandez, school complex in Broussailles, section
Stéphane Fernandez designs a school made of stone on the Mediterranean coast
Stéphane Fernandez, school complex in Broussailles, detail
Stéphane Fernandez designs a school made of stone on the Mediterranean coast
Stéphane Fernandez, school complex in Broussailles, Cannes, France, 2018. Photo © Stéphane Aboudaram | WE ARE CONTENT(S)
Stéphane Fernandez designs a school made of stone on the Mediterranean coast
Stéphane Fernandez, school complex in Broussailles, Cannes, France, 2018. Photo © Stéphane Aboudaram | WE ARE CONTENT(S)
Stéphane Fernandez designs a school made of stone on the Mediterranean coast
Stéphane Fernandez, school complex in Broussailles, Cannes, France, 2018. Photo © Stéphane Aboudaram | WE ARE CONTENT(S)
Stéphane Fernandez designs a school made of stone on the Mediterranean coast
Stéphane Fernandez, school complex in Broussailles, Cannes, France, 2018. Photo © Stéphane Aboudaram | WE ARE CONTENT(S)
Stéphane Fernandez designs a school made of stone on the Mediterranean coast
Stéphane Fernandez, school complex in Broussailles, Cannes, France, 2018. Photo © Stéphane Aboudaram | WE ARE CONTENT(S)
Stéphane Fernandez designs a school made of stone on the Mediterranean coast
Stéphane Fernandez, school complex in Broussailles, Cannes, France, 2018. Photo © Stéphane Aboudaram | WE ARE CONTENT(S)
Stéphane Fernandez designs a school made of stone on the Mediterranean coast
Stéphane Fernandez, school complex in Broussailles, Cannes, France, 2018. Photo © Stéphane Aboudaram | WE ARE CONTENT(S)
Stéphane Fernandez designs a school made of stone on the Mediterranean coast
Stéphane Fernandez, school complex in Broussailles, Cannes, France, 2018. Photo © Stéphane Aboudaram | WE ARE CONTENT(S)
Stéphane Fernandez designs a school made of stone on the Mediterranean coast
Stéphane Fernandez, school complex in Broussailles, Cannes, France, 2018. Photo © Stéphane Aboudaram | WE ARE CONTENT(S)
Stéphane Fernandez designs a school made of stone on the Mediterranean coast
Stéphane Fernandez, school complex in Broussailles, Cannes, France, 2018. Photo © Stéphane Aboudaram | WE ARE CONTENT(S)
Stéphane Fernandez designs a school made of stone on the Mediterranean coast
Stéphane Fernandez, school complex in Broussailles, Cannes, France, 2018. Photo © Stéphane Aboudaram | WE ARE CONTENT(S)
Stéphane Fernandez designs a school made of stone on the Mediterranean coast
Stéphane Fernandez, school complex in Broussailles, Cannes, France, 2018. Photo © Stéphane Aboudaram | WE ARE CONTENT(S)
Stéphane Fernandez designs a school made of stone on the Mediterranean coast
Stéphane Fernandez, school complex in Broussailles, Cannes, France, 2018. Photo © Stéphane Aboudaram | WE ARE CONTENT(S)
Stéphane Fernandez designs a school made of stone on the Mediterranean coast
Stéphane Fernandez, school complex in Broussailles, site plan
Stéphane Fernandez designs a school made of stone on the Mediterranean coast
Stéphane Fernandez, school complex in Broussailles, basement floor plan
Stéphane Fernandez designs a school made of stone on the Mediterranean coast
Stéphane Fernandez, school complex in Broussailles, ground floor plan
Stéphane Fernandez designs a school made of stone on the Mediterranean coast
Stéphane Fernandez, school complex in Broussailles, first floor plan
Stéphane Fernandez designs a school made of stone on the Mediterranean coast
Stéphane Fernandez, school complex in Broussailles, section
Stéphane Fernandez designs a school made of stone on the Mediterranean coast
Stéphane Fernandez, school complex in Broussailles, section
Stéphane Fernandez designs a school made of stone on the Mediterranean coast
Stéphane Fernandez, school complex in Broussailles, detail
Blocks are laid out in the lot in order to follow the land’s sloping contours, “through the non-invasive shaping of small-scale excavations and embankments (…), without removing any ground from the site”.
Rather than blending into an unspoiled natural landscape, the goal here is to integrate the man-made continuum of a large coastal conurbation, also including Cannes, entirely sloping and looking towards the sea.
- Project:
- school complex in Broussailles
- Program:
- school
- Location:
- Cannes, France
- Architects:
- Stéphane Fernandez (Atelier Fernandez & Serres)
- Client:
- Municipality of Cannes
- Surface (school):
- 5,000 sqm
- Surface (gymnasium):
- 1,000 sqm
- Completion:
- 2018
