View gallery
776_COMMS_08_Plan_065_FLAT
776_COMMS_07_Plan_060_FLAT
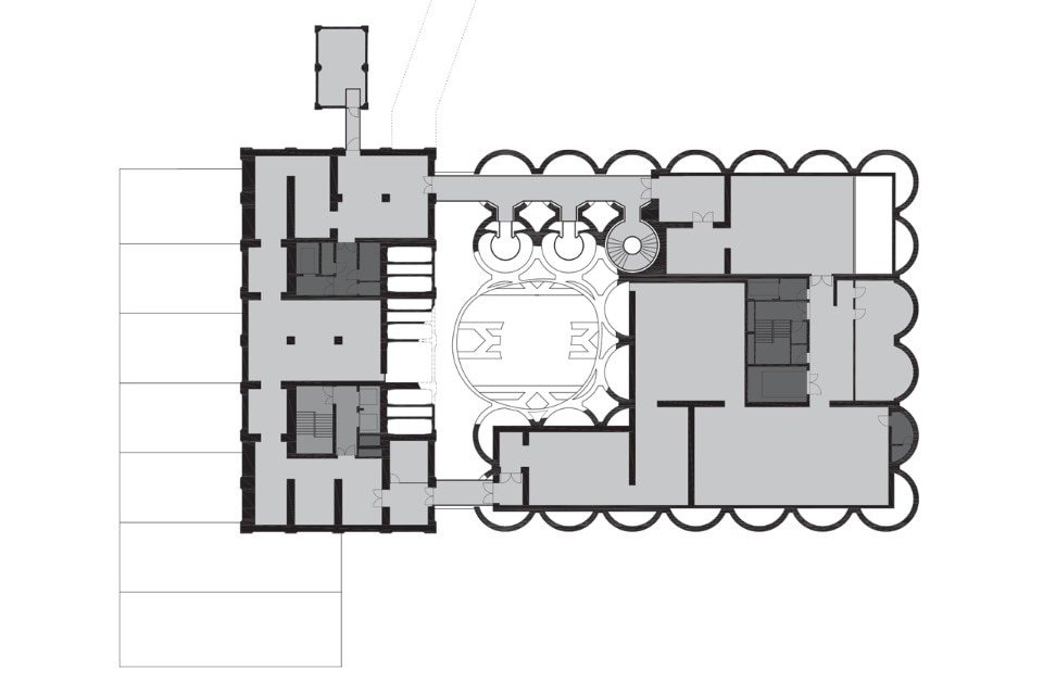
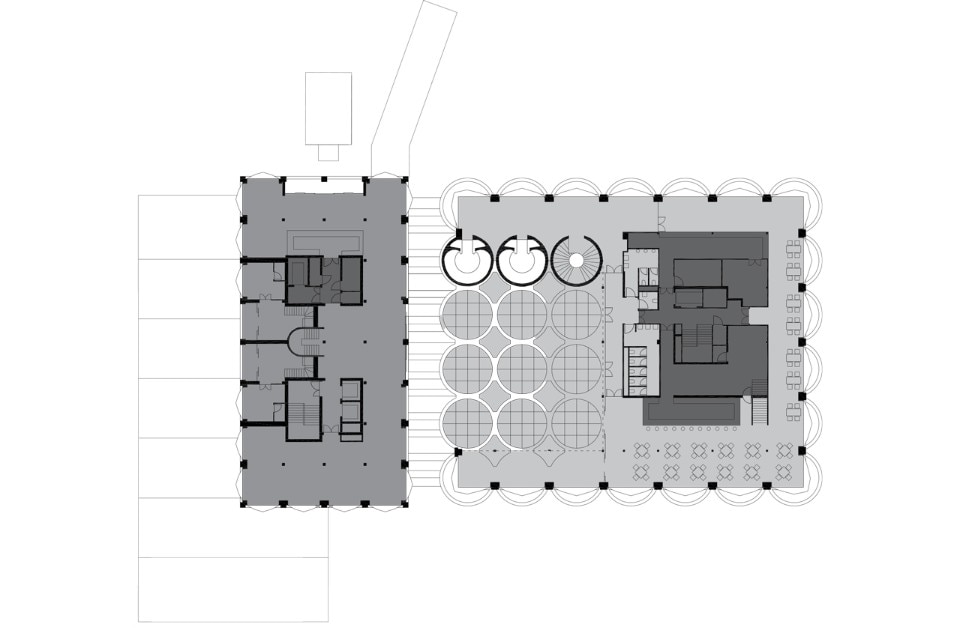
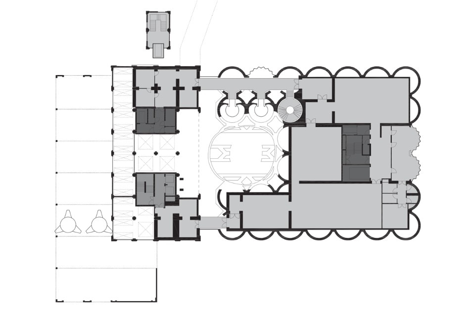
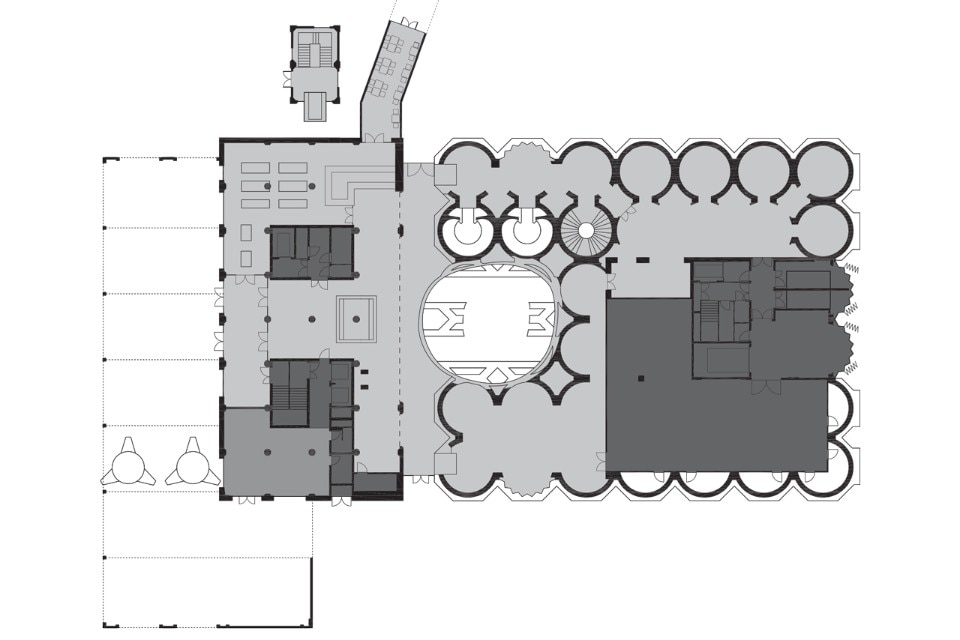
Realising the concept of carved tubes was technically challenging. Modelled on a single grain of corn, the rounded shape was scaled up to all the 27 m high volume and then translated into thousands of coordinates, each defining a point within the silo’s tubes. Mapped out physically with nails, the brittle concrete tubes only 170 mm thick were then lined with partial inner sleeves of reinforced concrete. The new concrete sleeves created a stable composite structure 420 mm thick and provided a cutting guide for removing portions of the old silos. The existing tubes were pared back to reveal the curved geometries of the 4,600 mc atrium. The cut edges were polished to give a mirrored finish that contrasts with the building’s rough concrete aggregate.
Zeitz MOCAA (Museum of Contemporary Art Africa), Cape Town
Program: museum
Architect: Heatherwick Studio – Thomas Heatherwick
Design team: Mat Cash (group leader), Stepan Martinovsky (project leader), Simona Auteri, Ruggero Bruno Chialastri, Yao Jen Chuang, Francis Field, Sarah Gill, Xuanzhi Huang, Changyeob Lee, Julian Liang, Débora Mateo, Stefan Ritter, Luke Snow, Ondrej Tichy, Meera Yadave
Structural engineering: Arup, Sutherland
Installations: Arup, Solution Station
Contractor: WBHO
Completion: 2017
