View gallery
The design for a new club sports hall for SV Haiming also results from a similar ambivalence of “values”. Despite many built banalities the village centre is still intact. The play with banality actually is the starting point of the design. The hall seems to be taken from the catalogue of local timber construction and precast factories. The breaking of the rule, as in the case of fat, sculptural-formed concrete beam on the inside of the south wall and the merely suspended prefabricates columns on the outside, are just as important as the rules and their formalisms themselves. The direct catchy image of a structure contrasts with a sort of vagueness of what is truly a load bearing and what is only an image of it. This ultimately results in a tension in contrasting pairs such as forced banality and constructional pragmatism.
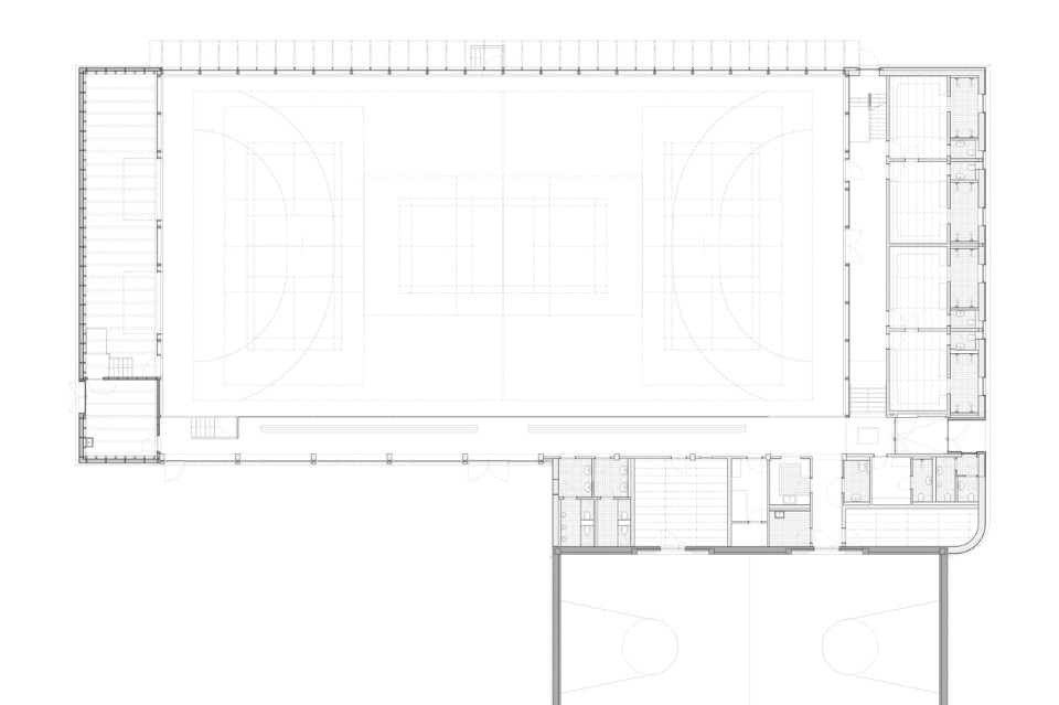
Sports Hall Haiming, Germany
Program: sports hall
Architect: Almannai Fischer
Design team: Rolf Enzel, Florian Fischer, Harald Fuchshuber, Benjamin Jaschke, Antonia Sivjakov
Structural engineering and fire security consulting: HSB Ingenieure
Landscape: Link Landschaftsarchitekten
Technical engineering: intertech, Wolfgang Schultes
Electric engineering: Elektro Rössler, Stefan Wilhelm
Area: 1,850 sqm
Completion: 2016
