View gallery
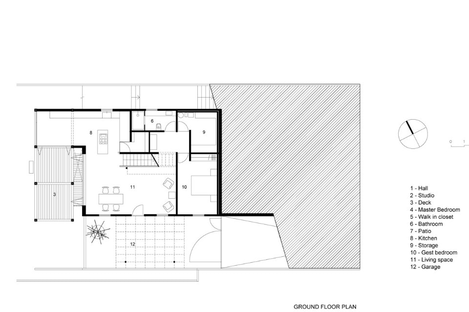
The existing crawl space underneath the front of the house was further excavated to augment the total square footage of the property. Towards the back a steel moment frame was added in order to create a transitional space that mediates between the house and the garden and protects the rear facade from the afternoon sun. In its interior, the new central staircase with a distinct saw-tooth profile, connects the two levels.
View gallery
Fleischman residence, Echo Park, Los Angeles, USA
Program: house renovation
Architects: Productora
Team: Carlos Bedoya, Wonne Ickx, Victor Jaime, Abel Perles
Collaborators: Juan Luis Rivera, Peter Boldt, Formation Association Architecture, Inc. – John Chan
Structural engineering: IDG Structural Engineering – Farshid Behshid
Landscape design: Terremoto – David Godshall
Greywater system: Greywater Corps – Leigh Jerrard
General contractor: Zorzoli Construction – Alex Zorzoli
Area: 220 sqm
Completion: 2017
