View gallery
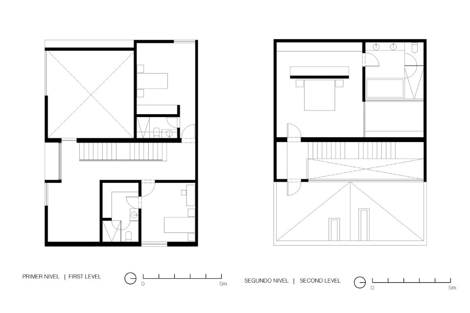
A multipurpose room located on the basement was needed where the client’s family would spend a lot of quality time. Architects thought of introducing a double height patio that would provide natural lighting and ventilation to the basement. This gave the perfect excuse to plant a tree that would bring character to the space. This void acts as an articulator, causing an indirect spatial relationship between the entrance on both levels and the dining room, the spaces can be seen but not touched.
The Cave, Zapopan, Mexico
Program: single family house
Architect: Abraham Cota Paredes Arquitectos
Collaborators: Sergio Iván Chávez Padilla
Area: 390 sqm
Completion: 2017
