View gallery
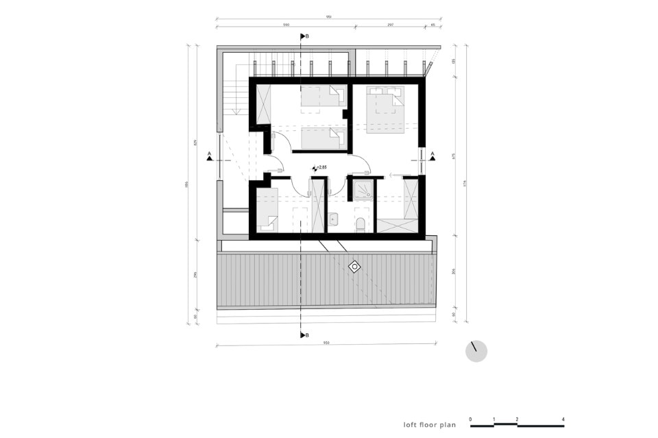
Functionally, the house is divided into ground floor (containing living room, kitchen with dining room, and terrace), and loft (with three bedrooms and bathroom). The access to the house is on the northern side, while the southern side of the existing house is extended with a terrace, which is an inter-space between the interior and the backyard. Extended parts of the ground level are cladded with stone tiles from local quarry. The upper level is partly covered with wooden planks, making an interaction with gables on surrounding houses, which are usually covered with wood.
House in Smilovci, Serbia
Program: house extension
Architect: Modelart Arhitekti
Design team: Dejan Mitov, Jelena Mitov, Krsto Radovanović, Bojan Mitov (lead architects), Marko Vučić, Digital Design Center (digital design)
Area: 111 sqm
Completion: 2017
