View gallery
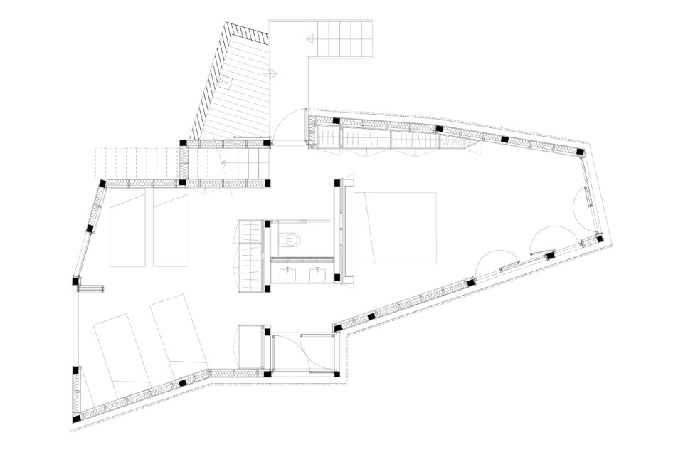
The structure of the house is in laminated douglas wood whilst the cover is made of larch brackets vertically placed. Another way to reinvent the arbour and, with the help of the growing flora, to merge house and land together. The house itself has two levels: on the garden level, a bathroom and two rooms; on the ground level, a kitchen and a living room that ends outside. The interiors are covered by shinoki ash panels.
Villa Kget, Ensuès la Redonne, France
Program: vacation house
Architecture: Bonte & Migozzi
Area: 225 sqm
Completion: 2016
