View gallery
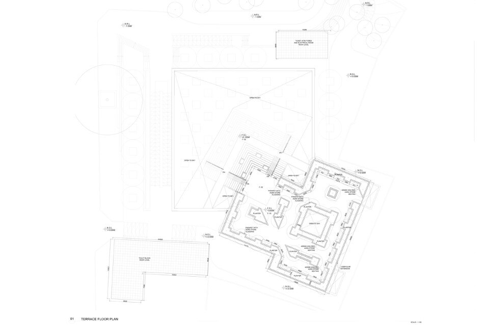
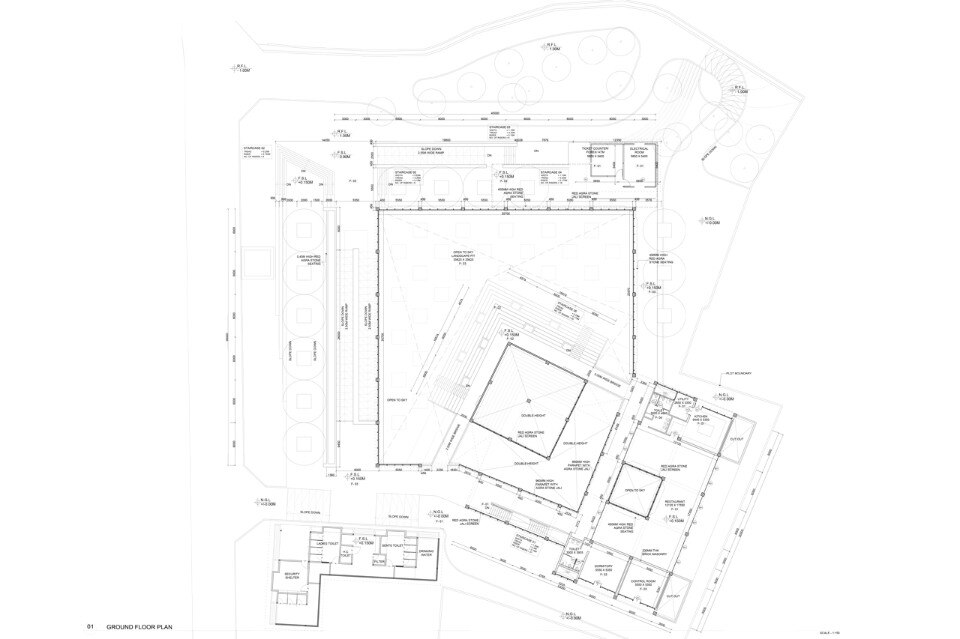
The proposal deals with the tourist facilities improvement by providing greener zone with urban infrastructure at intermediate intervals and improving the street facade and street infrastructure of the roads. Also proposals for providing tourist facility centre in the form of Tajganj Visitors Centre has been proposed in the close vicinity of the Taj Complex in Taj Ganj area. It looks towards providing facilities and information for the tourist and activity center for the local craftsmen act as a bridge between the tourist and locals.
Taj Ganj urban redevelopment, Agra, India
Program: public space
Architect: Studio Archohm – Sourabh Gupta
Design team: Siddharth Singh, Sujit Jacob, Mohit Gupta, Shivani Shastri, Shailesh Pathak, Shriya Aggarwal, Inakshi Mittal, Kavana, Mariyam Hassan
Area: 1,040 sqm
Completion: 2016
