View gallery
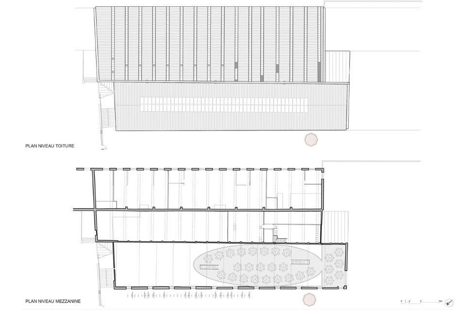
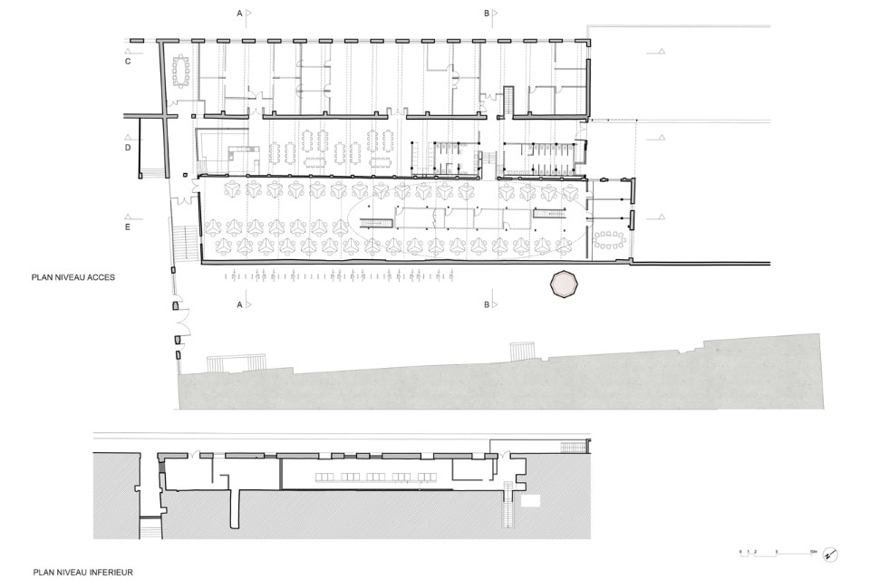
The first phase of the work led by the town and the architect Philippe Prost allowed for the rehabilitation of the principal building and of the courtyard. H2o continued the process readapting the “R Buildings”, to create working places for the Image Center of the Southern Rhône-Alpes. The architects preserved the qualities inherent to the existing buildings which are modest yet efficient: a spatial generosity bathed throughout by natural light, a repetitive and simple constructive system. The central hall, well lit but without a view, is the living heart of the project, a meeting space for the different companies working there.
View gallery
La Cartoucherie, Bourg-les-Valence, Valence, France
Program: multifunctional building
Architects: h2o architectes, ID+Ingénierie
Area: 2,420 sqm
Cost: 2,3M €
Completion: 2016
