View gallery
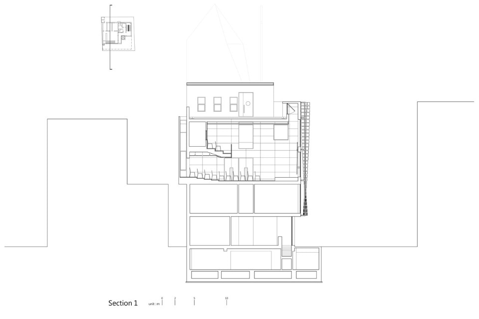
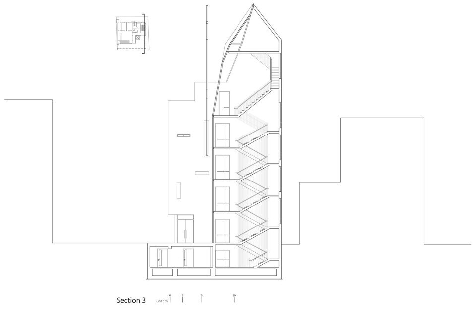
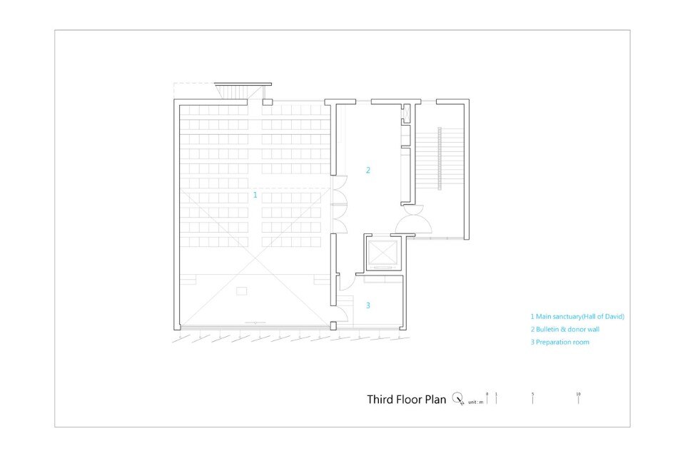
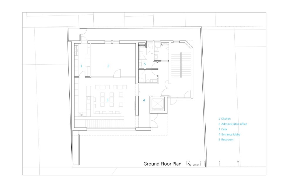
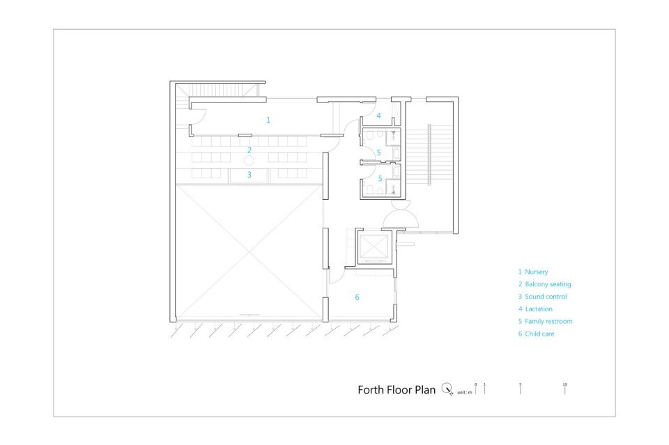
The sanctuary is a raised two-story cubical volume formed by cast-in-place architectural concrete and illuminated by soft light filtered through aluminum perforated screens on the church exterior. A cantilevered wood staircase at the back of the sanctuary takes the user through the sky figuratively before connecting back into the sanctuary mezzanine. The white vertical staircase terminates at church’s top floor, which consists of three separate pray rooms.
Tainan Tung-Men Church, Tainan, Taiwan
Program: church
Architect: MAYU architects+ – Malone Chang and Yu-lin Chen
Project team: Malone Chang, Yu-lin Chen, Sheng-Yang Huang, Elisabeth Lebas, Yu-Ling Liu, Ting-Yi Lo, Miao-Ling Cheng, Yong-Sian Fang
Structural engineer: Envision Engineering Consultant
MEP & HVAC Engineer: Zhao-Rong Chen Engineers Associates
Contractor: Fugu Construction
Area: 1,240 sqm
Completion: 2015
