View gallery
The top floors are comprised of standard offices, and the C-suites, while the ground floor and the lower floors house public and shared functions: exhibition gallery, meeting and reception rooms, café, and restaurant serving the entire site, distributed around a broad atrium. This configuration ensures that all the offices benefit from equivalent spatial qualities and quality lighting. In addition, it fosters optimal communication between occupants and users and easy navigation of the site thanks to looping circulations.
View gallery
01-DOCS GRAPHIQUES CMLACO - ANNEXE 1 EQUERRE 2016.pdf
AIA Associés, New headquarters of Crédit Mutuel, diagram
G:\AIA\aia0272a10 CM LACO Bureaux\00-COMMUNICATION\book\dwg book\CMA---C1 A4-1000-C1 (1)
AIA Associés, New headquarters of Crédit Mutuel, section
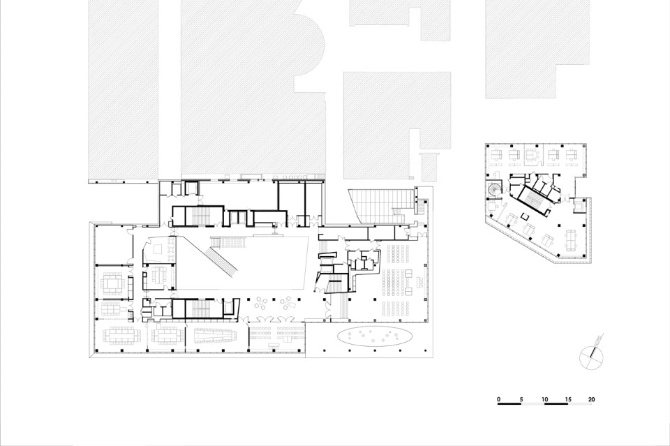
G:\AIA\aia0272a10 CM LACO Bureaux\00-COMMUNICATION\book\plans autocad DET\CMA---N0 A4-1000-N0 (1)
AIA Associés, New headquarters of Crédit Mutuel, ground floor
G:\AIA\aia0272a10 CM LACO Bureaux\00-COMMUNICATION\book\plans autocad DET\CMA---N1 A4-1000-N1 (1)
AIA Associés, New headquarters of Crédit Mutuel, first floor
New headquarters of Crédit Mutuel, Nantes
Program: office building
Architects: AIA Associés, associated with AIA Architectes and Intens-Cité
Interior architects: AIA Architectes and Mouvement carré (Stéphane Renaud)
General engineering and project economy: AIA Ingénierie
Facades engineering consultant: Arcora
Environment engineering: AIA Studio Environnement
Scheduling, overseeing and coordination: AIA Management
Area: 42,300 sqm
Completion: 2016
