View gallery
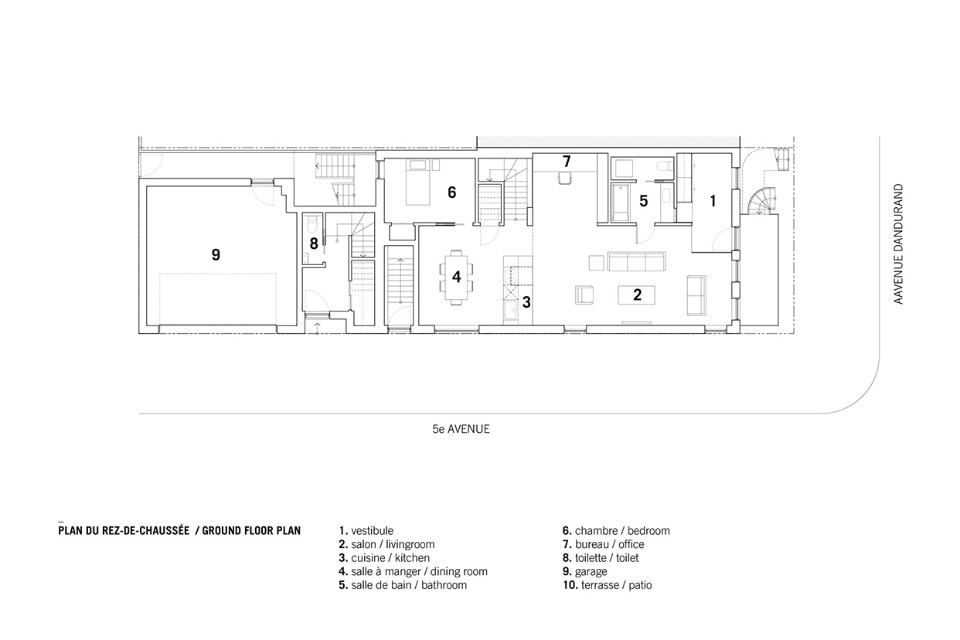
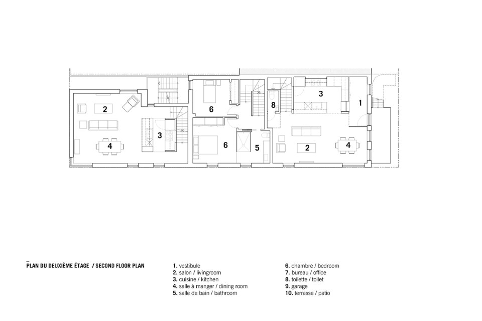
The intervention was minimal on Dandurand Street, rather extending along the perpendicular street. In the existing section, the brick was replaced, but the original openings were mostly retained, while large angled windows were built on the addition, multiplying the views on the urban landscape.
View gallery
Dandurand Residences, Montreal
Program: housing renovation
Architect: _naturehumaine
Area: 380 sqm
Completion: 2016
