View gallery
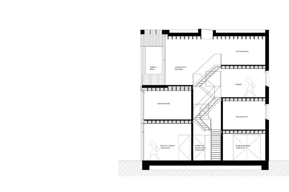
The house is based on a reversed principle: its owners decided to sleep downstairs and live upstairs. This allows them to fully enjoy the views of the harbour from the kitchen, the lounge and the dining room. The owners’ wish was to connect the areas on the upper floors with the lower floors in one, continuous flow.
View gallery
Lofthouse I, Amsterdam,The Netherlands
Program: single family house
Architects: Marc Koehler Architects
Team: Marc Koehler, Chun Hin Leung, Hugo Vermeer, Carlota Alvarado, Mariana Rebelo Fernandes, Marijn Luijmes
Contractor: J.S. Siemensma B.V.
Consultant: Breed Integrated Design
Completion: 2016
