School in Kfar Saba

Regavim Architects designed a school building in Kfar Saba, Israel, featuring a stone and HPL homorganic envelope and two patios as “external classrooms”.

Regavim Architects, Primary School in Kfar Saba, Israel, 2016
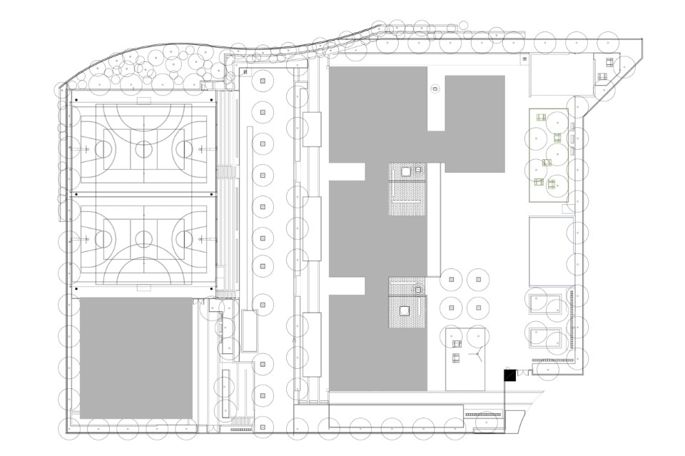
In accordance to the guidelines given by the Israeli Ministry of education, the site was provided by the municipality for this project. It was enough space to contain a primary school, a gymnasium, two basketball courts and exterior areas for the entertainment of the 700 children attending this compound. Each part of the whole creates the negative space of the other, making the site organization simple, straight forward, and coherent.
Regavim Architects, Primary School in Kfar Saba, Israel, 2016
Regavim Architects, Primary School in Kfar Saba, Israel, 2016
The entrance to the compound is from the south-east corner, through a public square. As one passes the guard booth and enters the compound, the school building is revealed in all of its glory and function as a barrier enclosing the front playground for the youngest students. The two-story building, a rectangular elongated shape was designed with two distinguished wings: the Entrance hall and Administration wing, and the classrooms with its appendix wing. 
Regavim Architects, Primary School in Kfar Saba, Israel, 2016
Regavim Architects, Primary School in Kfar Saba, Israel, 2016
The building designs leading idea was to create a simple homorganic envelope. A simple building but not simplistic, an elongated box, dignified and at the same time humoristic and loose. Mostly cladded with white stone, the envelope has twists in it – a plastic, 3 dimensional and staggered fenestrations, resembling the random, chaotic nature of the young students. These fenestrations were cladded with “Fundermax” 8 mm exterior HPL to appear in contrast to the white monolithic walls.
Regavim Architects, Primary School in Kfar Saba, Israel, 2016
Regavim Architects, Primary School in Kfar Saba, Israel, 2016
Two patios were designed as “exterior classrooms” for the enjoyment of the young students. The patios are wide and intimate at the same time and are an integral part of the building, accessible from within and from outside. Their harmonious atmosphere and peaceful design makes them attractive for the young users who find them a joyful-shaded-protected play area.
Regavim Architects, Primary School in Kfar Saba, Israel, 2016
Regavim Architects, Primary School in Kfar Saba, Israel, 2016
The general design derives its logic from that same courtyard idea so that the building is not a simple closed envelope, rather it’s a long folded shape with many exist and exterior spaces enclosed between the building volumes. As a result, the building is highly ventilated, lit, and shaded simultaneously. The corridors function as transparent hallways – lighting and reflecting the activities inside and outside, and still being protected from the sun.

Primary School in Kfar Saba, Israel
Program: primary school
Architects: Regavim Architects
Design team: Eran Zilberman, Yehuda Reuven, Liya Ozer, Liya Ozer, Amit Haas
Area: 2,800 sqm
Completion: 2016

Latest on Architecture

Latest on Domus

China Germany India Mexico, Central America and Caribbean Sri Lanka Korea icon-camera close icon-comments icon-down-sm icon-download icon-facebook icon-heart icon-heart icon-next-sm icon-next icon-pinterest icon-play icon-plus icon-prev-sm icon-prev Search icon-twitter icon-views icon-instagram