In order to successfully integrate the different buildings and visually unify all of the CNAC buildings with the northern hangar and the Rousseau silo, the facades of the school building and housing are made of natural coloured Eternit-type fibre cement, with caisson rafters supporting undulating plaques of fibre cement.
Rather than defining itself in opposition to the existing buildings, the project extends them, echoing their materials and forms. Eternit was chosen to restore the reputation of a cheap material.
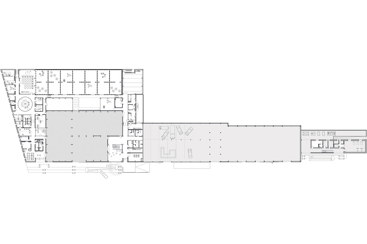
Centre national des arts du cirque, Châlons-en-Champagne, France
Programme: extension and construction of 13 student housing
Architect: Caractère Spécial § Matthieu Poitevin Architecture and NP2F architectes (associated architect)
Project managers: Marc Kauffmann and Nicolas Guérin
Structural engineering: DVVD Fluids/EQ
Engineering: Elithis
Construction economics: VPEAS
Lighting design: Lumières studio
Scenography: Ducks sceno
Acoustics: Orfea
Landscape: Base
Surface area: 3,500 sqm SHON (5,500 sqm sdp)
Cost: 5,1 M€ HT
Completion: 2015
