Following the client’s decision to use a “Design-build” procedure that corresponded to the cost and scheduling issues, we had to work smartly and collectively to implement inventive strategies.
The roof terraces of the buildings are laid out to welcome mutualized outdoor spaces instead of private ones. They are distinguished by thematic colors: “red-athletics” (sports, games, etc.), “blue-pool” (relaxation, children’s playground), and “green-garden” (vegetable garden, ping-pong, etc.).
The inhabitants will be able to inhabit the rooftops and most importantly, they will be able to inhabit them together. No illusions or fake utopias in these shared uses, as the occupants (gendarmes and their families) are used to a coherent, organized community living.
In contrast to the classic housing block that had been put forth in the initial working brief, the collective Plan01 instead chose diversity and proposed a varying building height that created a skyline devoid of monotony and with multiple views.
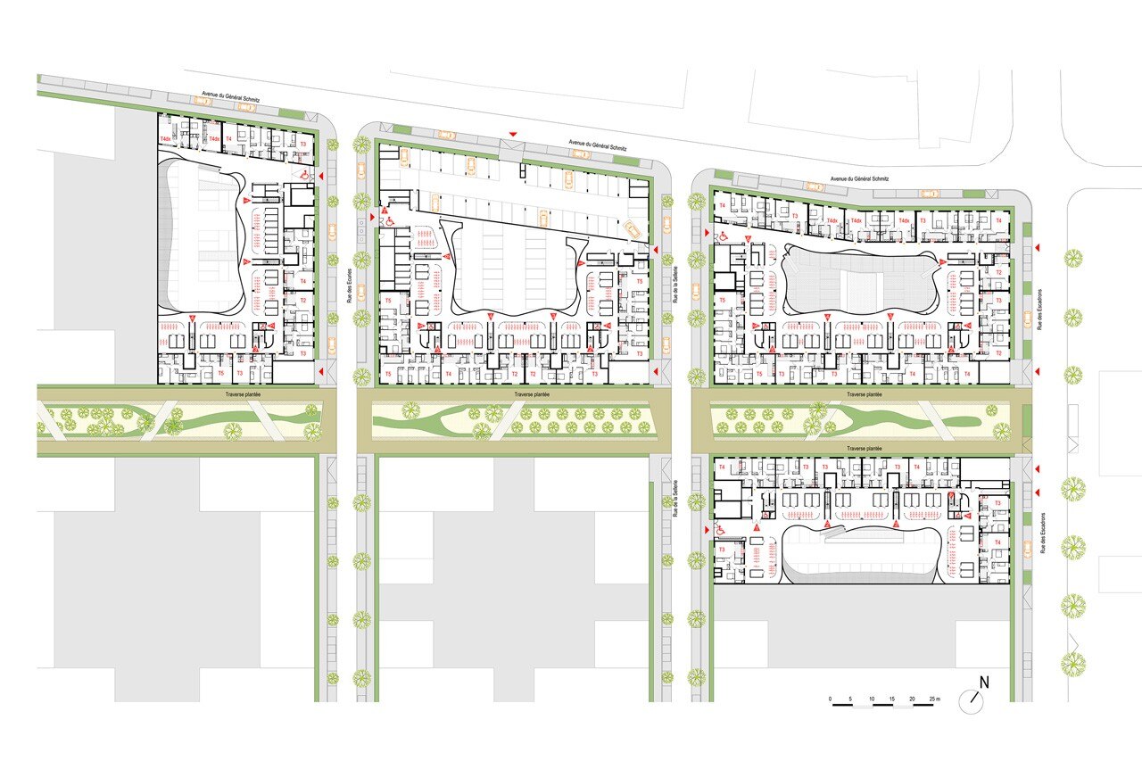
Pontoise Housing, Pontoise, France
Program: 360 housing units for staff of the Gendarmerie Nationale
Client: Immobilière 3F and Immobilière 3F for Val d’Oise Habitat
Architects: PLAN01 (colletivo compostto da: Atelier du Pont, Ignacio Prego Architectures, Jean Bocabeille Architecte, Koz and Philéas)
Enegineering: Incet
Sustainable engineerign: PLAN02
Landscape architect: Paula Paysage
Light design: Lumesens
Contractor: Léon Grosse
Stakeholders: Communauté d’agglomération de Cergy-Pontoise, Ville de Pontoise, Cergy Pontoise Aménagement, Agence Pierre Gangnet, LGX
Sustainability: BBC – H&E Profil A
Budget: 45,251,000 € (pre-tax)
Completion: 2015
