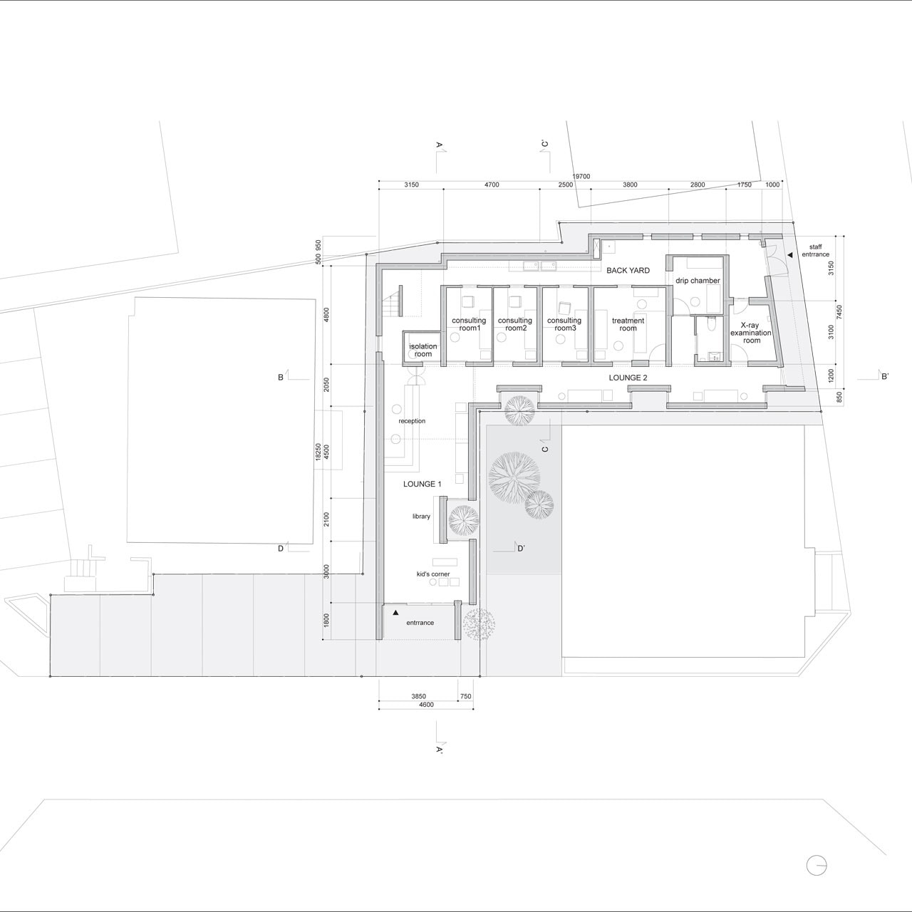
To have the benefit of the maximum area on the following site boundary, the floor plan results as L-shaped. The building is northeast oriented, opening through a dynamic facade with several recesses that allow to let the natural light come inside, while at the same time keeping the privacy of visitors.
This concept of recesses creates a strong relation between the external natural environment and the interior space. That, at the same time, creates a variety of niches that give the patient the possibility to choose their favourite one.
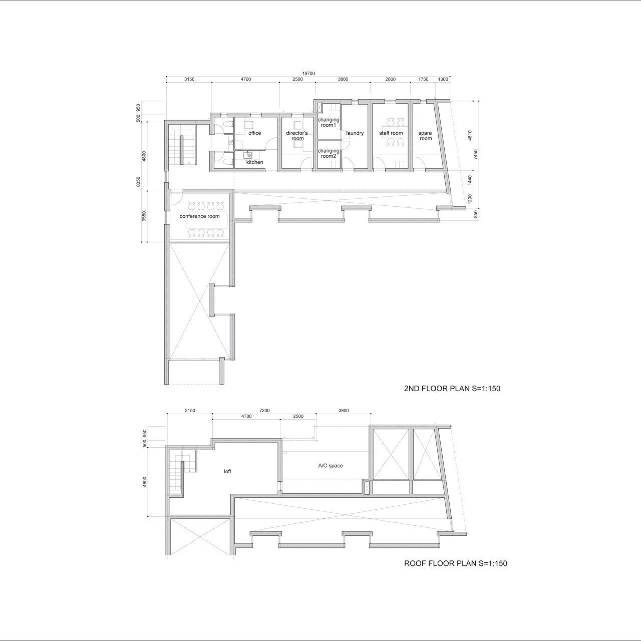
The building is composed of two floors: on the first one there are all clinical examination rooms to facilitate the elderly and disabled people, and the service spaces for the staff members are situated at the second floor.
To give a more familiar image of the building the architects chose a typical house-shape as facade. The roof gets gradually higher until the center of the building. This transition produces spaces with right proportions, from a cozy entrance to a double height space for waiting, which reduce the feeling of pressure for the surrounding environment.
View gallery
Asahico clinic, Tokyo, Japan
Program: clinic
Architects: Hkl studio
Collaborating architect: Michio Kinoshita / Workshop
Collaborating facade design: Kenichi Shikata
Structural engineer: Structural Design Office Plus One Co.,Ltd.
M&E engineer: Sakamaki Environmental Engineering office
Signage designer: Tokolo.com, Banana Design
Contractor: Shin Corporation
Area: 200 sqm
Completion: March 2015
