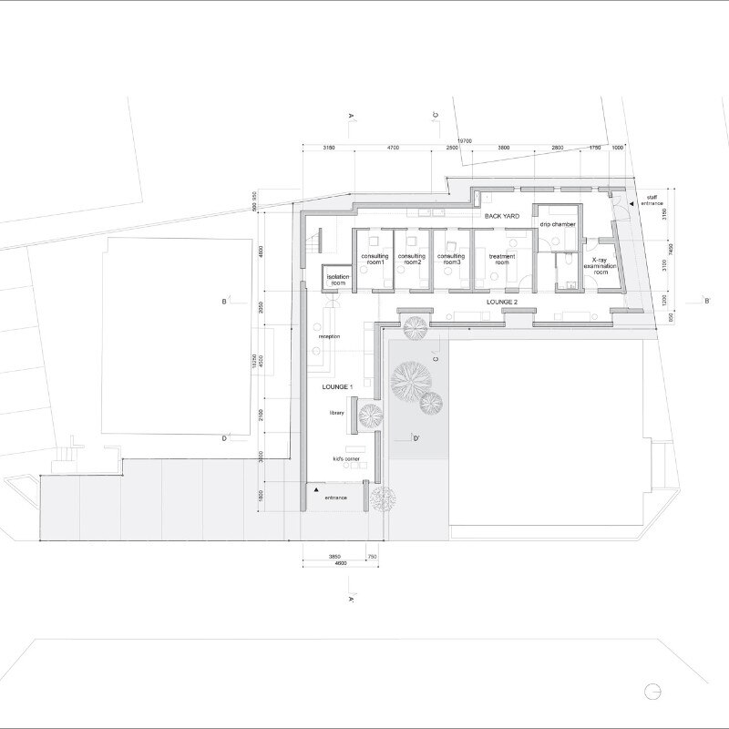
Per sfruttare al massimo la superficie del sito, la pianta segue la forma di una L. L’edificio è orientato a nord est, verso cui si rivolge con una facciata dinamica con diverse cavità che consentono di lasciare entrare la luce naturale mantenendo la privacy dei pazienti.
Questa serie di recessi crea una forte relazione tra l’ambiente naturale esterno e lo spazio interno e, allo stesso tempo, disegna una varietà di nicchie che danno al paziente la possibilità di scegliere quella che preferisce. L’edificio si compone di due piani: al primo sono collocate tutte le stanze per gli esami per facilitare le persone anziane e disabili, mentre gli spazi di servizio per i membri dello staff sono al secondo piano.
Per dare un’immagine più familiare all’edificio gli architetti hanno scelto una facciata che segue la sezione archetipica della casa.
La copertura segue un’altezza crescente verso il centro dell’edificio. Questa transizione produce spazi con giuste proporzioni, da un ingresso accogliente a uno spazio a doppia altezza per l’attesa, che riducono la sensazione di pressione rispetto all’ambiente circostante.
Galleria
ACL_plan.ai
Asahico clinic, Tokyo, Giappone
Tipologia: clinica medica
Architetti: Hkl studio
Collaboratori: Michio Kinoshita / Workshop
Progetto delle facciate: Kenichi Shikata
Ingegneria strutturale: Structural Design Office Plus One Co.,Ltd.
Ingegneria impiantistica: Sakamaki Environmental Engineering office
Segnaletica: Tokolo.com, Banana Design
Impresar: Shin Corporation
Area: 200 mq
Completamento: marzo 2015
