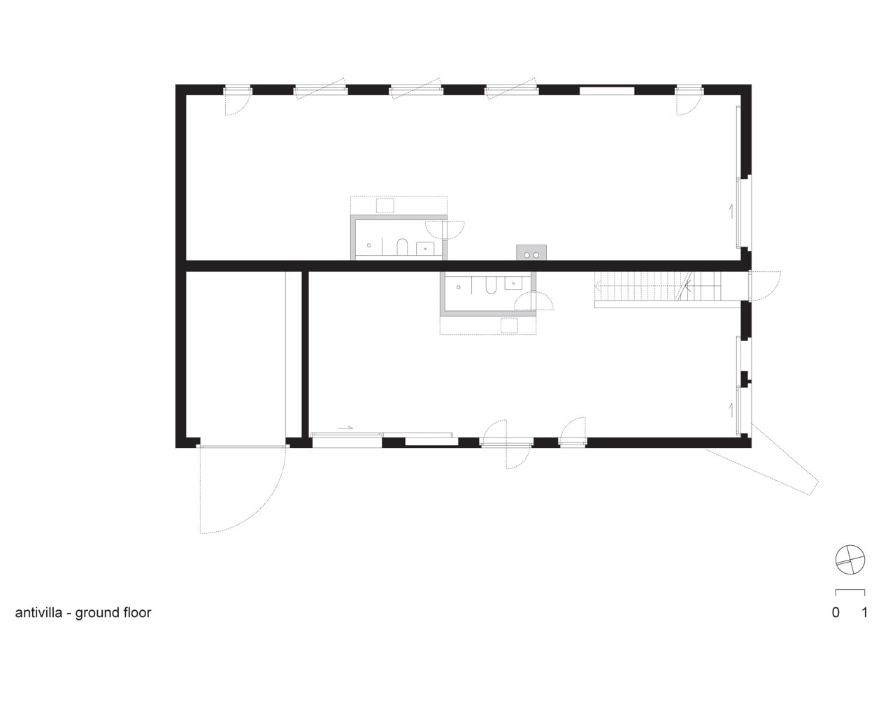
Instead of insulating the existing structure and to save costs, the facade was covered with shortcrete. To generate an open space all non-bearing walls were removed and a functional 20 square meter core with the staircase, bathroom, kitchenette, fireplace as well a sauna were installed in the center of both floors. The space can be zoned by simple transparent PVC curtains according to the actual climate needs. In the summer time the curtains are retreated only to a 10 square meter bedroom in the 230 square meter open loft space, while in winter the heated area makes only 60 square meters of the whole floor area which includes moving the bed closer to the open fire.
The gable roof, made of corrugated asbestos plates, was removed and replaced by a flat concrete slab that structurally allowed big openings in the walls. These, up to five meter, large windows on the north and south facade, are the result of the collective work by friends hammering away the wall to create big openings which provide a scenic view over the nearby lake.
View gallery
0131_Antivilla - 01 site plan_brandlhuber+ emde, schneider
0131_Antivilla - 02 ground floor_brandlhuber+ emde, schneider
Antivilla, Potsdam, Germany
Program: single-family house and studio
Architects: Brandlhuber+ Emde, Schneider
Team: Elsa Beniada, Peter Behrbohm, Klara Bindl, Romina Falk, Victoria Hlubek, Tobias Hönig, Cornelia Müller, Markus Rampl, Paul Reinhardt, Jacob Steinfelder, Caspar Viereckl
Execution planning and project management: Emde + Schneider
Structure: Pichler Ingenieure / Andreas Schulz, Robert Hartfiel, Karin Guttmann
Area: 230 sqm
Completion: 2014
