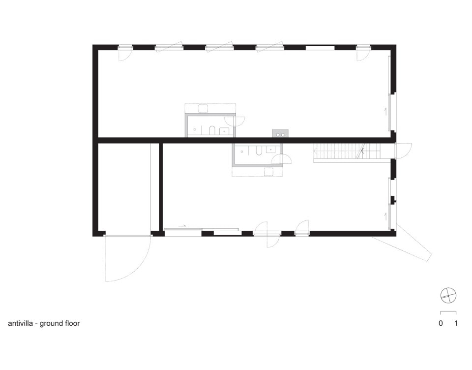
Invece di isolare la struttura esistente, per risparmiare sui costi, la facciata è stata rivestita di calcestruzzo spruzzato. Per generare uno spazio aperto tutte le pareti non portanti sono state rimosse ed è stato installato un nucleo funzionale di 20 metri quadri – esteso su entrambi i piani – che contiene la scala, il bagno, un angolo cottura, un caminetto e una sauna. Lo spazio può essere suddiviso in zone da semplici tende in PVC trasparente in base alle esigenze climatiche. In estate le tende chiudono solo una camera da letto di 10 metri quadri all’interno di un grande open space di 230 metri quadrati, mentre in inverno la zona riscaldata si riduce a soli 60 metri quadrati e il letto viene spostato vicino al camino.
Il tetto a timpano, in lastre ondulate di amianto, è stato rimosso e sostituito da una lastra piana di calcestruzzo che ha strutturalmente permesso grandi aperture nelle pareti. Queste finestre, grandi fino a cinque metri, che punteggiano le facciate nord e sud, sono il risultato del lavoro collettivo di amici che hanno spaccato a martellate il muro per creare grandi aperture che offrono una vista panoramica sul vicino lago.
Galleria
0131_Antivilla - 01 site plan_brandlhuber+ emde, schneider
0131_Antivilla - 02 ground floor_brandlhuber+ emde, schneider
Antivilla, Potsdam, Germania
Tipologia: casa unifamiliare e studio
Architetti: Brandlhuber+ Emde, Schneider
Team: Elsa Beniada, Peter Behrbohm, Klara Bindl, Romina Falk, Victoria Hlubek, Tobias Hönig, Cornelia Müller, Markus Rampl, Paul Reinhardt, Jacob Steinfelder, Caspar Viereckl
Progetto esecutivo e responsabili di progetto: Emde + Schneider
Strutture: Pichler Ingenieure / Andreas Schulz, Robert Hartfiel, Karin Guttmann
Area: 230 mq
Completamento: 2014
