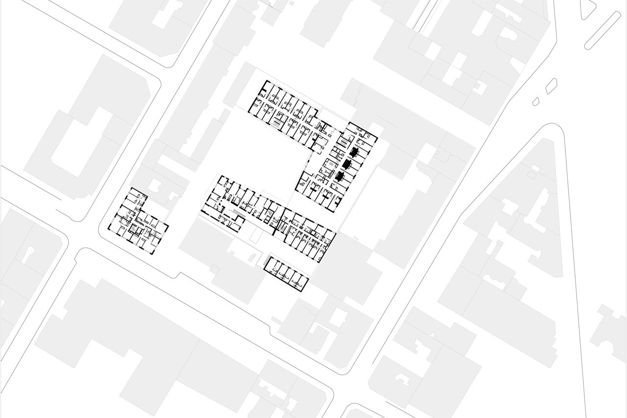
The compact, sculpted volumes of the corner building are visible from its four sides and announce the two other buildings within the block. It comprises 30 social apartments and a shop. Although different and more urban in appearance, it is in the same spirit as the buildings in the centre of the block. The treatment of the upper levels gives the eight-storey construction its very specific silhouette.
The entrance hall, in the passageway leading to the middle of the block, is sheltered by the cantilever overhang, which accentuates the construction’s urban dimension. To give the building compactness, densify the plot and highlight its position on the street, the exterior spaces were replaced by a communal roof terrace accessible to all residents. The housing units have very large plate glass windows creating a privileged
relationship with the exterior and optimum sunshine, reminiscent of traditional Parisian workshop buildings. The self-supporting profiled glass envelope gives its monochrome facades unity and luminosity.
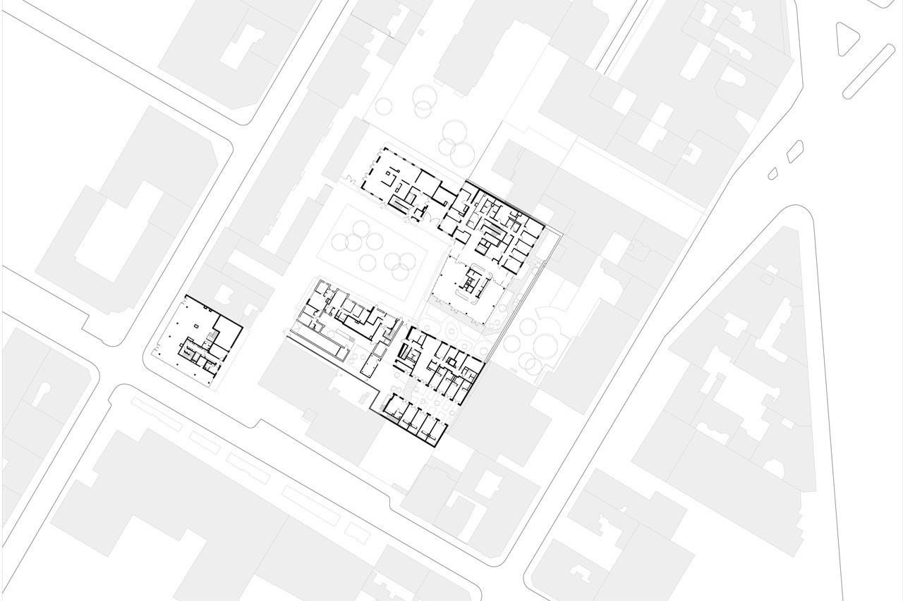
Located in the heart of a vast block adjoining the Front de Seine quarter, The Heart comprises several programmes. The overall implantation concept is the idea of a constructed landscape. The project is composed of two buildings whose strong, coupled presences complement and balance each other.
The west building, containing the retirement home, the day centre and the crèche, is a horizontal superimposition of luminous enamelled glass bands. The materiality of the east building is important because it provides light and reflections for its residents and users. The east building, containing the housing units and the shelter, is a more slender, sculptural volume clad in wood.
View gallery
Z:\TVK COMMUNICATION\PRESSE + WEB\05_DOSSIERS DE PRESSE\LOURMEL\documents visuels\DWG\fichiers bons\Lourmel_Presse_Coupe+Plan P
Z:\TVK COMMUNICATION\PRESSE + WEB\05_DOSSIERS DE PRESSE\LOURMEL\documents visuels\DWG\fichiers bons\Lourmel_Presse_Coupe+Plan P
Z:\TVK COMMUNICATION\PRESSE + WEB\DOSSIERS DE PRESSE\LOURMEL\documents visuels\DWG\fichiers bons\Lourmel_Presse_Coupe+Plan Présentation2 (1)
Rue de Lourmel, Paris
Program: social housing, retirement home, day centre, creche
Architects: Trévelo & Viger-Kohler Architects Urbanists
Construction consultants: Berim
Acoustic consultants: LASA
HEQ consultants: Franck Boutté Consultants
Landscape architects: BASE
EHPAD facade consultants: ARC
Technical direction assistance HEQ corner: Prévention consultant
Technical direction assistance HEQ heart: Impact
Contractors: Lainé Delau, Cegelec
Client: SemPariSeine
Owner: Paris Habitat
Area: 11,000 sqm
Completion: 2015
