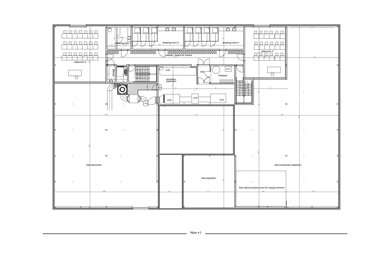
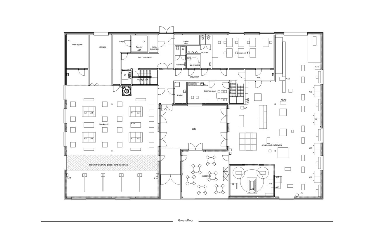
The new school comprises a platform of approximately 1,525 sqm and is based on the patio model for reasons of security and noise control. Transparent sectional doors are employed to allow views of the patio and between the various forges.
The chosen form enables efficient and shared use of the technical areas and installations. The building has a concrete plinth of 1m20. The rest of the facade and roof is covered by a copper-coloured lacquered steel plate: the metal colour creates a link with the crafts. The copper gives the building presence on the campus without it appearing too industrial. The windows are of black painted aluminium. Variation in the shape of the roof reflects the industrial past of the area and provides architectural interest.
View gallery
oostgevel
noordgevel
A3
A3
A3
School for ornamental metalwork and blacksmithing, Anderlecht, Belgium
Program: school
Architects: BURO II & ARCHI+I
Structural work: Istema, Gent
Safety coordination: JP Beerens
Acoustique: Bureau De Fonseca, Meise
EPB: Climatex, Merchtem
Head contractor: Peremans nv, Halle
Steel framing: Staalbouw Verelst nv, Putte
Facade and roof works: Jodamo nv, Bree
Plantation: De Claremont Alain bvba
Surroundings: Van Hoorebeeck J nv
Area: 31,557 sqm
Completion: 2015
