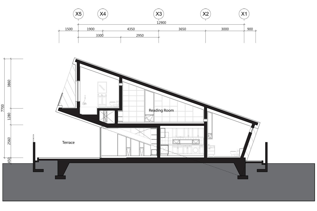
In the Leaning House, instead of putting a separate structure to the mass, the form of massing works as a structural system. The Leaning Box has a frame structure at the envelope of the box, and is supported by the vertical Glass Box so that it can eliminate redundant structural element.
This concept is driven by the architectural vocabulary “Topology & Typology” that Praud has been developing. The “Topology & Typology” is a theoretical experiment based on Anthony Vidler’s theory on typology. “Topology” focuses on the form of architecture regarding to the relationship between solid and void, while “Typology” develops the system of the building. “Topology & Typology” tries to find out the harmony between the architectural form and the system that can be called as “Contemporarism”, architectural language of contemporary architecture, just as Modernism became the architectural language, not the style, in a certain period of time.
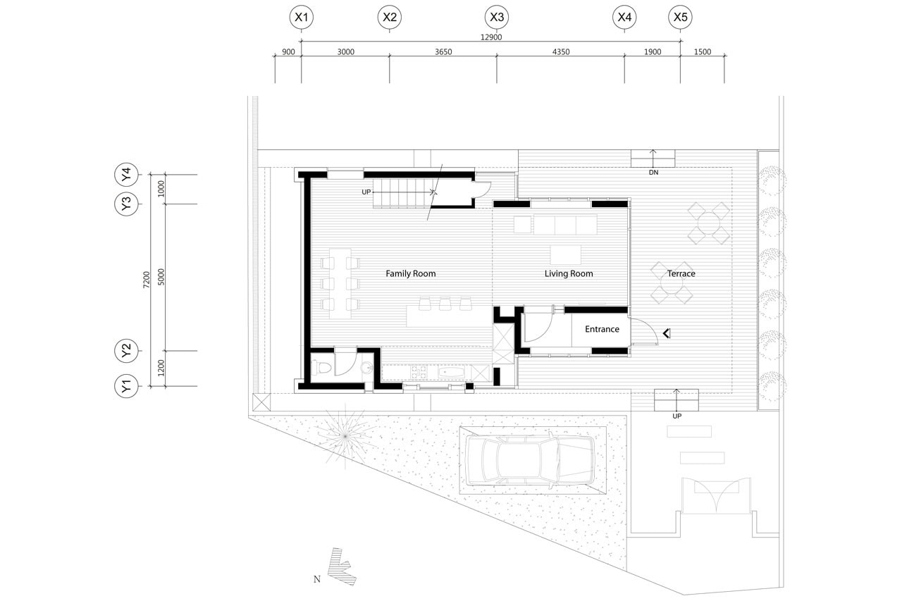
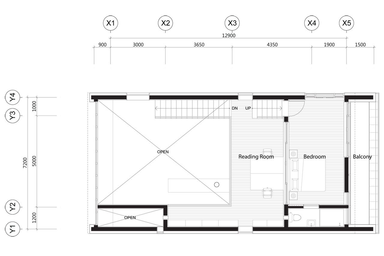
By lifting up the program box, a new space – the Third Space – is gained. The original requirement from the client was to have bedroom, reading room and living room, and with having the third space, it was able to put a new living room inside and terrace on the outside.
The Third Space provides more gradation for the house. The outside terrace is not fully public yet not fully private either. Also, inside living room is also a semi-public area within the house before getting into more private area. This variation in gradation gives deeper spatial quality in a small house project.
View gallery
Leaning House, Chungpyong, South Korea
Program: house and office
Architects: Praud
Principal in Charge: Dongwoo Yim, Rafael Luna
Local Architect: Sjai
Landscape: Changbok Yim, Praud
Lighting Design: Changbok Yim, Praud
Area: 96 sqm
Completion: 2014
