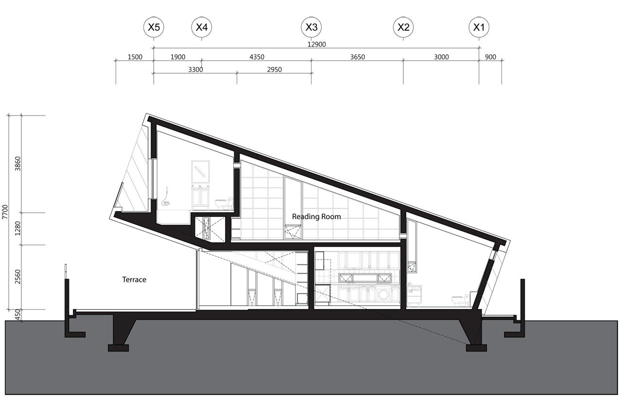
Anzichè separare volume e struttura, la Leaning House utilizza una forma che funziona anche come sistema strutturale: il Leaning Box (il volume inclinato) ha un telaio strutturale integrato nell’involucro, supportato dal Glass Box in modo da eliminare qualsiasi ridondanza.
Il progetto fa parte del vocabolario architettonico Topology & Typology (“Topologia & Tipologia”) che Praud sta sviluppando: è un esperimento teorico basato sulla teoria di Anthony Vidler sulla tipologia. Topology si concentra sulla forma architettonica e sul rapporto tra pieno e vuoto, mentre Typology
sviluppa il sistema costruttivo. L’intento è quello di trovare un’armonia tra forma e struttura che possa essere definita come Contemporarism, un linguaggio architettonico contemporaneo che vada oltre il mero stile, una versione attuale del Modernismo.
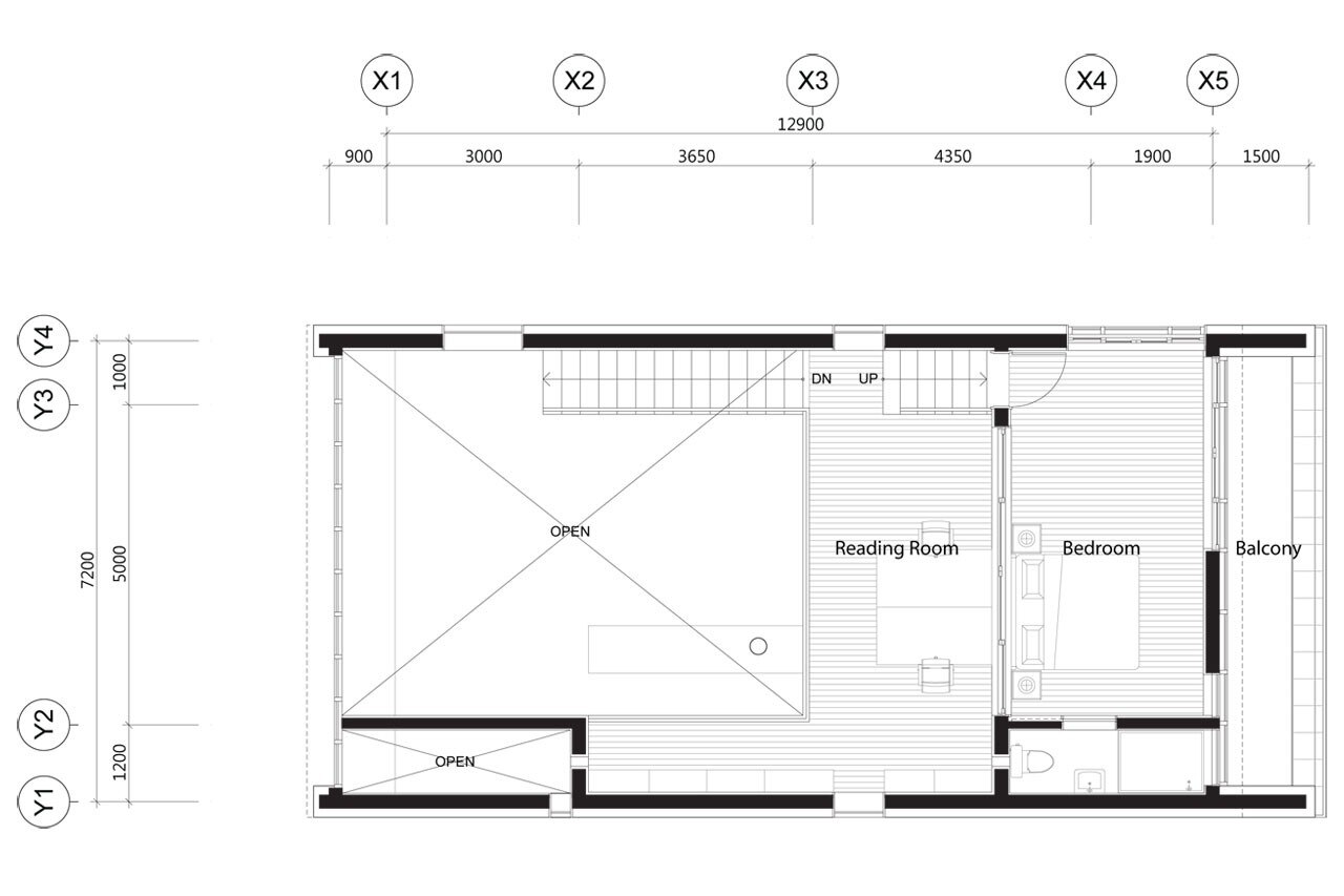
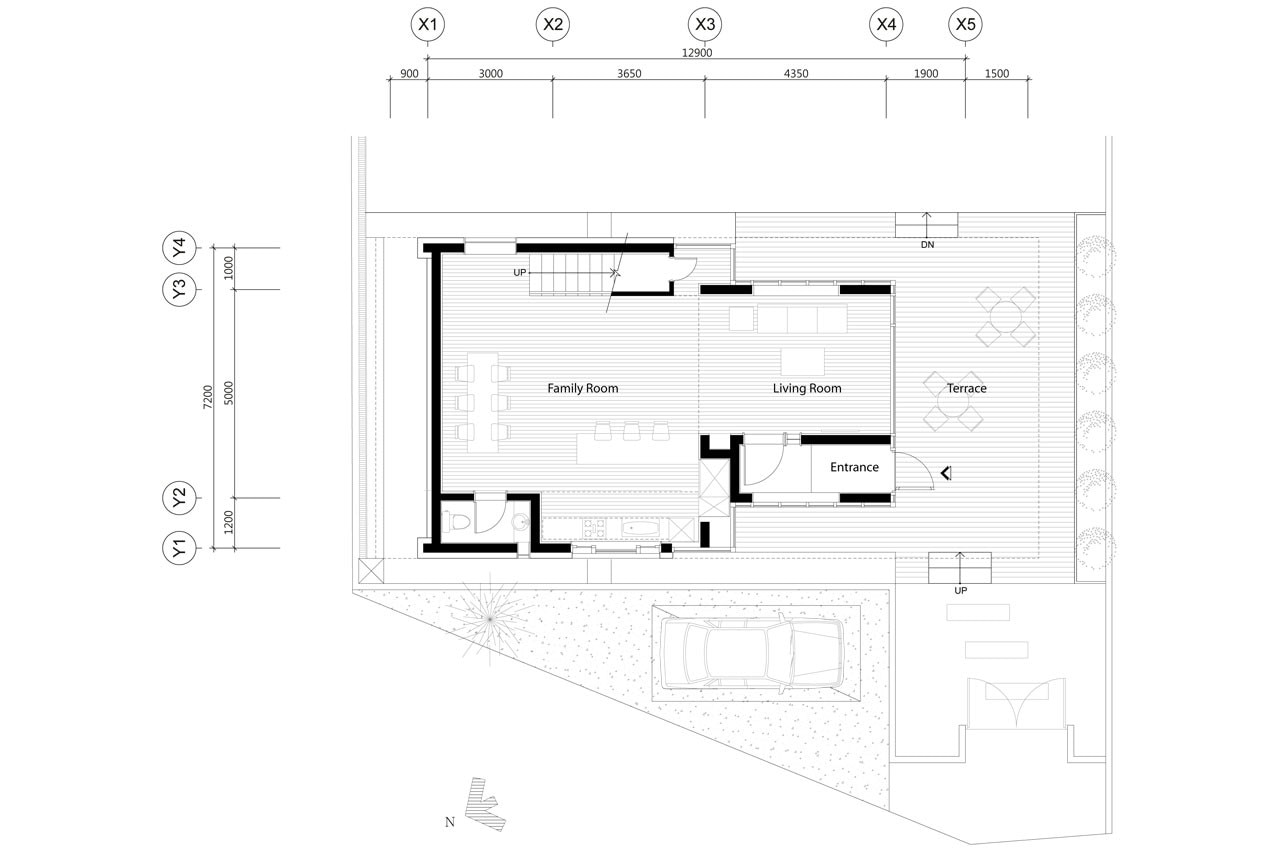
Il programma funzionale iniziale prevedeva una camera, una sala lettura e il soggiorno. Il terzo spazio creato dal sollevamento ha permesso di aggiungere una zona giorno interna e una terrazza.
Questo terzo spazio funziona come filtro tra il pubblico e il privato, tra interno ed esterno, creando una zona di transizione graduale che genera profondità spaziale anche in una casa di piccole dimensioni.
Galleria
Leaning House, Chungpyong, Corea del Sud
Tipologia: casa e ufficio
Architetti: Praud
Architetti responsabili: Dongwoo Yim, Rafael Luna
Partner Locale: Sjai
Paesaggio: Changbok Yim, Praud
Illuminazione: Changbok Yim, Praud
Area: 96 mq
Completamento: 2014
