View gallery
Model
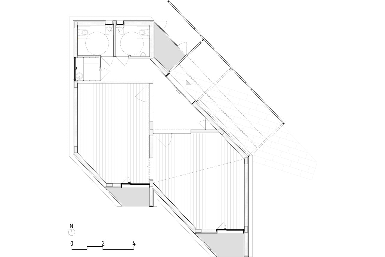
Raul Sousa Cardoso & Graca Vaz, Mortuary House in Vila Caiz, Amarante, Portugal. Siteplan
Mortuary House in Vila Caiz, Amarante, Portugal
Architects: Raul Sousa Cardoso & Graca Vaz
Area: 110 sqm
Completion: 2013
