“Did you see the super-long melted bench?” asks Bjarke Ingels brightly a few days later, referring to the curving steel skateboard-friendly bar that slips around one side of the mound, alongside a circular cluster of big’s Shanghai Expo-esque minimal white stools. The materiality and slope of this gentle
roof has an explicit loungability—a “come hang out”, playful ease reminiscent of PLOT’s early work.
The Gammel Hellerup Gymnasium, a traditional postwar low brick building in a neighbourhood scattered with seaside memorabilia and embassies, was indeed home to a young Bjarke Ingels between the ages of 16 and 19.
And now there is even more substantial evidence beyond just a rather charming year-book photo. The proof comes in the form of not only the courtyard sports hall, but also a huge pile of bound A3 planning files in the principal’s office that describe a “phase 2” project already on the books. Rasmussen smiles with pride and trepidation at the documents; I suspect he has more grey hairs coming. The story goes that a phone call took place between Ingels and his former maths teacher. He broached the idea of inviting big to solve the small-scale architectural problem of an environmentally friendly cottage, and Ingels responded with a blunt question: “But what do you really need?” “In Denmark schools are now totally self-owned entities, which means they operate almost as private companies that receive money according to the number of students they enrol,” explains Ingels. “So now each school has to try and be attractive
to new students.”
It was decided that the school needed to solve inherent gaps in its appeal to prospective and existing students—primarily the lack of a decent sports hall or community building—and subsequently to improve the navigation around the school, its social configuration and its status in the neighbourhood.
Bjarke Ingels explains: “I thought that if we were going to do something that big, it would be interesting to see if we could somehow refigure the school.
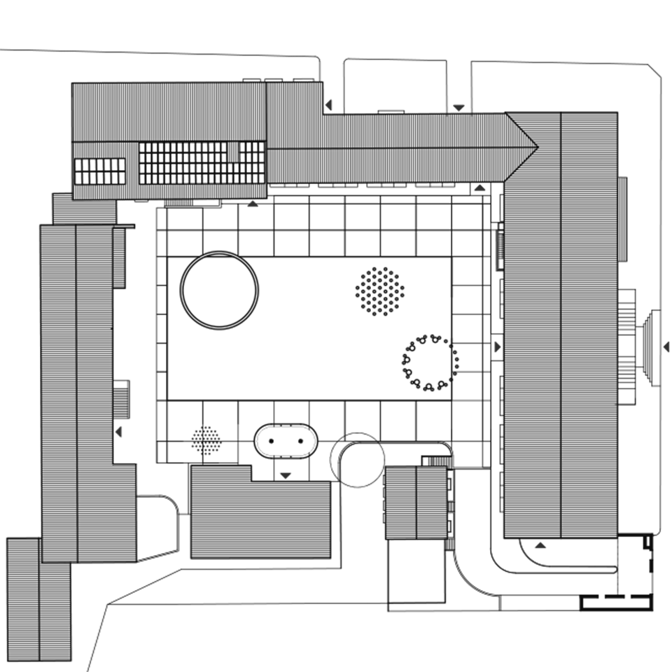
It proved difficult to find a location for a multifunctional sports hall that didn’t involve razing existing football fields. The answer came from Ingels’s study of what was once his playground. “It’s an old-fashioned school. When I was there, you’d either be in the courtyard, sitting along the benches around the edge (nobody was ever in the middle), or you’d be down in the canteen in the basement. Those are pretty much the only two places to hang out.”
With the new building half-submerged five metres into the belly of the schoolyard, it creates a direct relationship with the canteen on the lower floor, connecting what the architects perceive to be the two social hubs of the school. The artificial hill of the roof nestles comfortably in the courtyard and is dotted with various iterations of big’s slender white furniture, offering the teenage students a more informal way to use the previously awkward void.
The second move was to open the entrance of the school, so that a direct link could be made from the pavement, through the canteen and straight into the hall. As Ingels explains: “From the outside the school is totally enclosed by a brick wall, and they always wanted to host events that weren’t specific to the
school, and that could make it a more visible part of the city.” I tested this move when I was forced to dash underneath the slightly low, green-roofed wave of the new school entrance to escape a sudden downpour. It was exam season, so there were only a few lingering students in the canteen, and from here
I went straight through to the gym.
The design of the hall itself is clean and elegant. The in-situ concrete was poured with some nice touches—curved walls, no paint. From the roof a narrow perimeter of toughened glass lets light into the basement. Super-strength deep glulam beams create the subtle curved roof, which it transpires is partly a tribute to Ingels’s former maths teacher, as well as a nod to a Danish national sport: handball.
BIG will build a new creative wing for the school, where the roof of the new building will somewhat spectacularly roll out and also form the spectator stand for the existing football field. From the outside, the school is gradually settling into its new role and anticipating a fresh boost in student numbers over the coming years. With school proms and award ceremonies being hosted in the new hall, the students are also starting to adapt and occupy the courtyard and new entrance.
Back in his office, Rasmussen is in good spirits, waiting for the building works to begin again.
