The building is in a style typical of rural Lombardy. Static strengthening was applied to it and the whole of the upper floor was reconstructed.
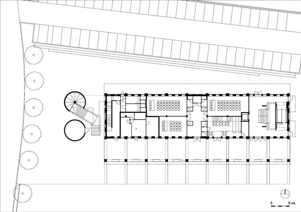
The rooms for club and cultural activities are on the ground floor, in addition to a café, a store room and the entrance to the theatre.
On the first floor, space has been found for a small 400-seat theatre, which has been built entirely from wood: it fills the empty barn arches and is supported by a double wall faced in larch wood planking.
The two silos, now linked together with zinc-plated steel bridges, have been used for a technical area and a fire escape. The covered area outside, where a new garden is being developed, has become the most well used space in this area of the town. Alberto Caruso, Elisabetta Mainardi
Cascina Commenda in Segrate: restoration and conversion to a cultural centre
Architect: caruso_mainardi architetti – Alberto Caruso, Elisabetta Mainardi
Structures: Aldo Galbiati (IN.GE)
Client: Comune di Segrate (Milan)
Built surface area: 1,200 sqm
Design: 1998-1999
Construction: 2000-2004
