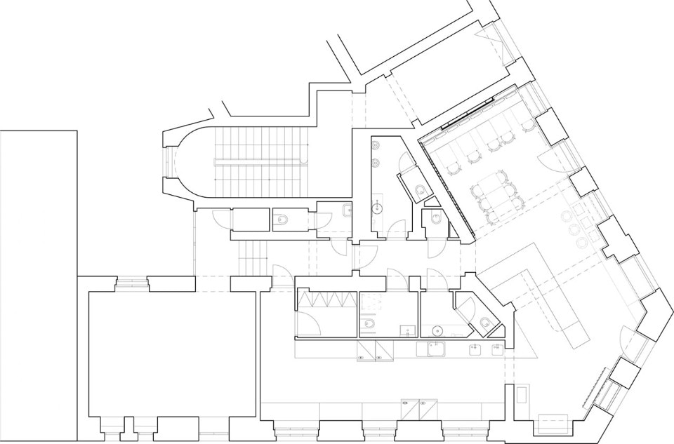
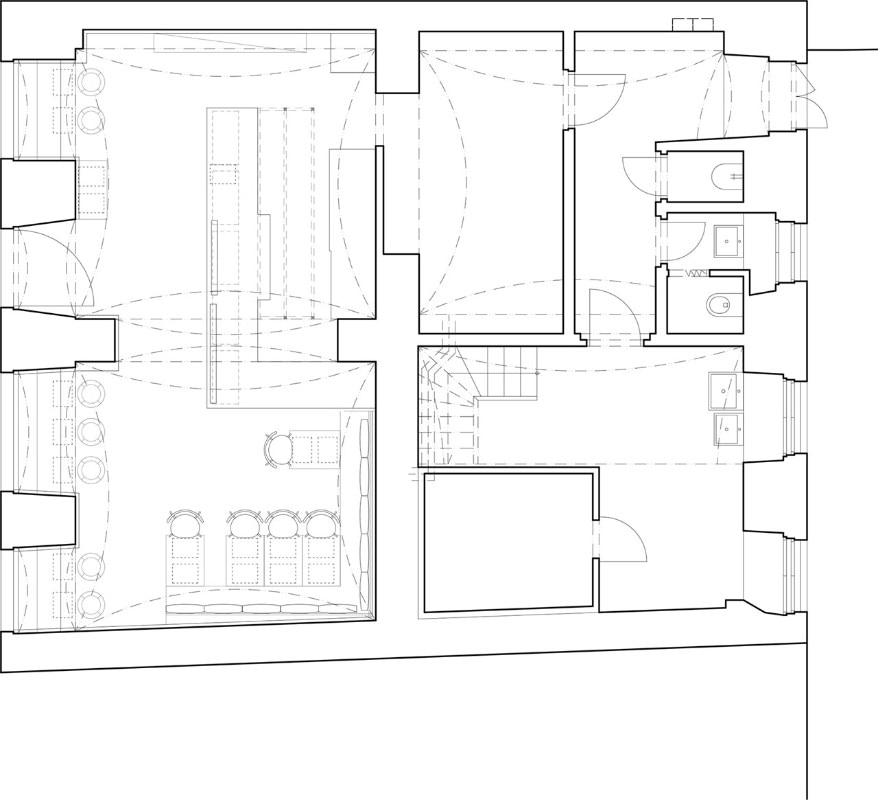
Con ristoranti e fast food, Praga ospita una lunga tradizione di cucina messicana. Burrito Loco, nella fattispecie, è una catena che doveva rinnovare la propria immagine coordinata, affidata allo studio ceco Formafatal. I nuovi interni sono definiti da colori accesi e alcuni elementi stereotipati facilmente riconoscibili dal grande pubblico. La nuova palette cromatica trasferisce il glamour e la varietà del Messico sulle piastrelle di ceramica, pareti, lamiera corrugata e i rivestimenti e le sedie.
Galleria
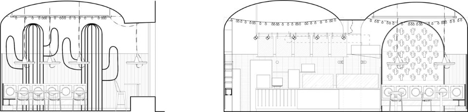
Formafatal ha intenzionalmente sostituito le classiche piastrelle messicane con delle varianti monocrome, e ha installato alcuni oggetti-simbolo della cultura pop messicana, come i cactus e le ghirlande di carta appese. Il sole stilizzato del logo di Burrito Loco è stapato su cuscini, pareti e vetrate. I bagni sono essenziali e tinteggiati con lo stesso rosa salmone e blu petrolio delle pareti del ristorante.
- Progetto:
- Burrito Loco
- Luogo:
- Praga
- Architetti:
- Formafatal
- Completamento:
- 2017
