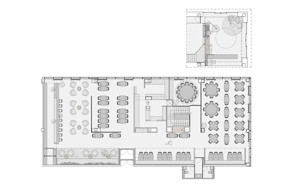
Galleria
Gli elementi mobili vengono ripetuti in tutto il ristorante e diventano anche pareti fisse. Servono a suddividere lo spazio in stanze di diverse dimensioni, permettendo di avere spazi più intimi e ampi spazi per grandi tavolate. Il materiale secondario è il calcestruzzo grigio, scelto per unificare la pavimentazione e dare allo spazio una continuità neutrale, come se fosse un mare calmo che evidenzia il legno e il suo colore marrone.
Club del riso, Valencia
Tipologia: ristorante
Architetto: Francesc Rifé Studio
Superficie: 350 mq
Completamento: 2017
