Galleria
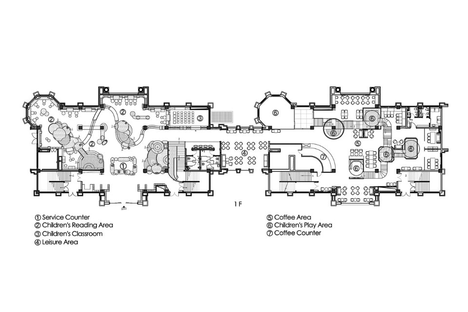
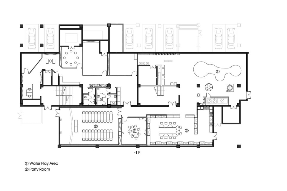
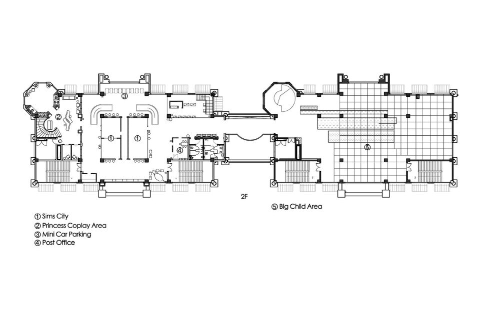
Entrando dall’ingresso principale, i bambini sono circondati da morbide foreste e colline ondulate che caratterizzano una zona di lettura libera e rilassante dove possono sentirsi un po’ più vicini alla natura. Accanto alla ‘foresta’ c'è una zona di lettura per genitori con una grande area finestrata. All’interno di Sims City è stata ricreata una piccola città di fantasia con spazi per giocare e zone per travestirsi. Nella Big Child Area ci sono pareti da arrampicata e scivoli che portano i bambini direttamente al piano di sotto, all’interno del bar ristorante. Nel piano interrato sono presenti diverse stanze a tema per le feste, che i bambini scelgono a loro piacimento.
Galleria
Neobio Family Park, Shanghai, Cina
Tipologia: spazio per bambini
Design: X+Living
Team di progetto: Li Xiang (direttore), Ren Lijiao, Liu Huan, Justin, Fan Chen
Arredamento: XiangCasa
Area: 3.000 mq
Completamento: 2017
