Galleria
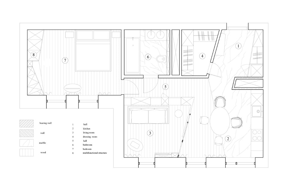
Lo stile dell’interno può essere descritto come minimalismo funzionale. Tutti i mobili sono chiaramente legati alla geometria dello spazio e creano un interno unitario, funzionale ai diversi usi del quotidiano e capace di trasformarsi a seconda delle necessità. Tutti i mobili sono stati progettati dallo studio russo e sono realizzati da artigiani locali. Quindi, per esempio, la partizione creata per il soggiorno è un armadio accessibile da entrambe i lati. La parte superiore è utilizzabile dalla parte della zona giorno, mentre il lato opposto, verso il corridoio, è apribile nella sua parte inferiore.
Appartamento a Mosca
Tipologia: appartamento
Architetto: Monoloko design
Superficie: 60 mq
Completamento: 2017
