Galleria
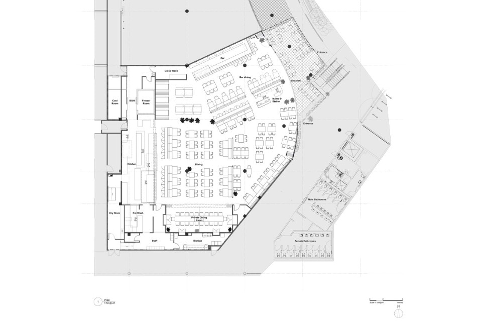
Le porte a soffietto completamente apribili permettono di estendere la parte anteriore del locale e lo aprono verso l’area bar nel cortile. È presente anche una sala da pranzo più privata, formale ed elegante, leggermente separata dal resto del ristorante. La grande sala ha ventiquattro coperti e dispone di una partizione centrale che permette alla stanza di essere divisa in due. Lo specchio di bronzo e il bancone di legno bianco danno inoltre agli ambienti un tocco di intimità.
Ristorante Hurricane, Narellan, Australia
Tipologia: ristorante
Architetto: Luchetti Krelle
Completamento: 2017
