Galleria
151026 AMA HQ CD MEDIA
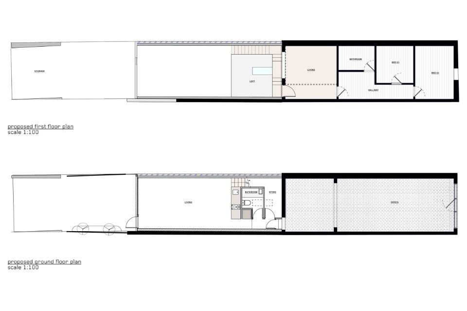
Austin Maynard Architects, My-House, sezione trasversale e prospetto
My-House è un esperimento che lo stesso Austin Mayard sta provando a compiere, non è una tipologia di casa che oserebbe imporre ai suoi clienti. Vengono infrante molte regole basilari della progettazione. Anche se ha caratteristiche sostenibili, l’abitazione non è termicamente efficiente come gli edifici progettati dallo studio per altre persone. Qui temi quali privacy e comfort, sono stati affrontati con soluzioni molto personali, ed è anche per questo che Myanard vi si è affezionato.
My-House, Melbourne
Tipologia: uso misto
Architetto: Austin Maynard Architects – Andrew Maynard, Ray Dinh
Ingegneria: R. Bliem Associates
Costruzione: Sargant Constructions
Superficie: 167 sqm
Completamento: 2016
