Fitting room

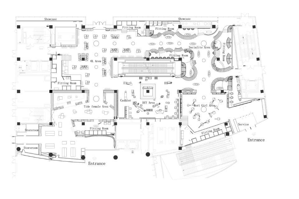
Per un negozio a Hangzhou, in Cina, X Living ha integrato al progetto la filosofia di quattro diversi marchi, utilizzando approcci e stili differenti per le diverse parti.

 X+Living, JOOOS Fitting Room, Hangzhou, Cina, 2016
JOOOS Fitting Room ricerca e analizza i migliori 1000 marchi di moda secondo i listini di vendita e ne seleziona le quattro collezioni più rappresentative attraverso il giudizio degli acquirenti. Il negozio vuole colmare il vuoto causato dall’acquisto di prodotti online.
 X+Living, JOOOS Fitting Room, Hangzhou, Cina, 2016
X+Living, JOOOS Fitting Room, Hangzhou, Cina, 2016
Il progetto si trova al piano terra di una trafficata strada commerciale a Hangzhou, in Cina. Uno schermo luminoso e interattivo è strategicamente posizionato accanto all’ingresso del negozio. I clienti possono creare relazioni digitali da internet, avendo riscontri visivi nel negozio. Questa è una delle caratteristiche fondamentali dello spazio: interpretare l’esperienza dello shopping nell’era digitale.
 X+Living, JOOOS Fitting Room, Hangzhou, Cina, 2016
X+Living, JOOOS Fitting Room, Hangzhou, Cina, 2016
Il designer ha integrato la filosofia dei quattro diversi marchi nel progetto. Ha quindi utilizzato approcci e stili completamente differenti per ognuna delle quattro parti dello spazio, che ha un’estensione di più di 1800 mq. Ognuna delle sezioni presenta numerose possibilità di esibizione del prodotto.

JOOOS Fitting Room, Hangzhou, Cina
Design:
Li Xiang – X+Living 
Team: Liu Huan, Ren Li-Jiao, Jia Yuan-Yuan
Superficie: 1850 mq
Completamento: 2016

Ultime News

Altri articoli di Domus

China Germany India Mexico, Central America and Caribbean Sri Lanka Korea icon-camera close icon-comments icon-down-sm icon-download icon-facebook icon-heart icon-heart icon-next-sm icon-next icon-pinterest icon-play icon-plus icon-prev-sm icon-prev Search icon-twitter icon-views icon-instagram