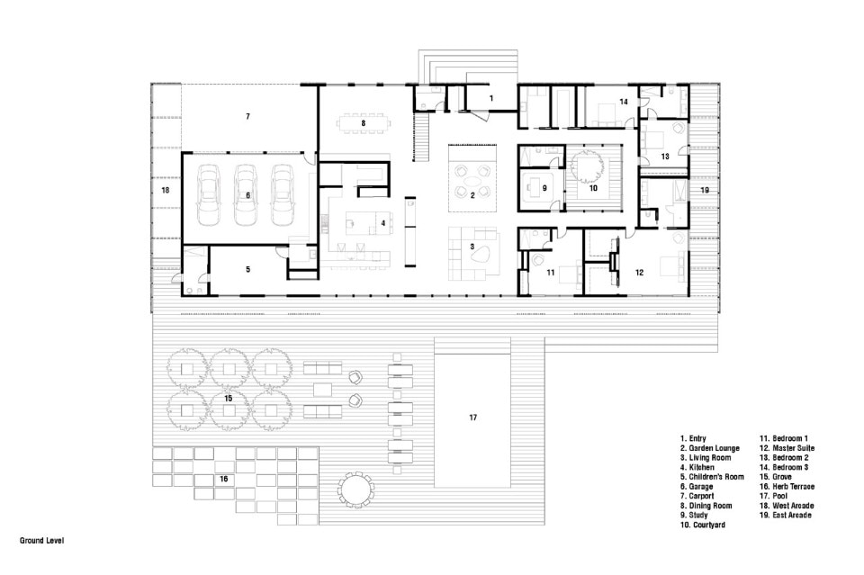
La casa è suddivisa in due aree principali: una per l’intrattenimento e una per il riposo. Un ingresso schermato conduce al salone, dove un grande lucernario illumina un giardino di ciottoli alberato sottostante. In questo open space, il soggiorno è collegato alla cucina tramite un bar aperto che divide i due spazi.
Le camere da letto hanno esposizioni multiple e sono circondate da un giardino giapponese. Questo piccolo spazio esterno fornisce sia un’area di incontro intima per la famiglia sia uno spazio di transizione tra interno ed esterno. Le pareti interne affacciate sul cortile ospitano una parte della collezione d’arte del proprietario, creando uno spazio espositivo che può essere visualizzato dal cortile.
Uno schermo di cedro si espande e si contrae intorno a tutti i lati della casa, creando un gioco dinamico di luci e ombre all’interno. Muovendosi intorno alla casa, lo schermo crea intimità, filtri di luce e cornici.
In alcuni punti le sottrazioni a questo schermo creano aperture per la vista e l’ingresso. Dalla zona giorno, una grande apertura crea una connessione senza soluzione di continuità con il cortile e la piscina panoramica, permettendo di collegare il salotto con l’esterno. Varie specie di viti rampicanti piantate lungo il perimetro trasformeranno la pelle della casa con la fioritura e le variazioni cromatiche durante le stagioni.
Meadow House, Potomac, Maryland, USA
Tipologia: casa unifamiliare
Architetti: Office Mian Ye
Responsabile di progetto: Mian Ye
Consulenza paesaggistica: Gena Wirth
Consulenza illuminotecnica: Megan Pfeffer
Impresa: Builtec
Partner locale: JR Bernlohr Architects
Committente: Withheld
Area: 650 mq
Completamento: 2014
