Invece di seguire la “formula” della zona, con Gablepack AND (Architecture of Novel Differentiation) propone cinque unità residenziali di dimensioni pari a 66 mq. Pertanto, tutte le unità possono avere due camere da letto di dimensioni ragionevoli e un soggiorno. Questa disposizione riflette la domanda locale, composta per la maggior parte da coppie con un figlio.
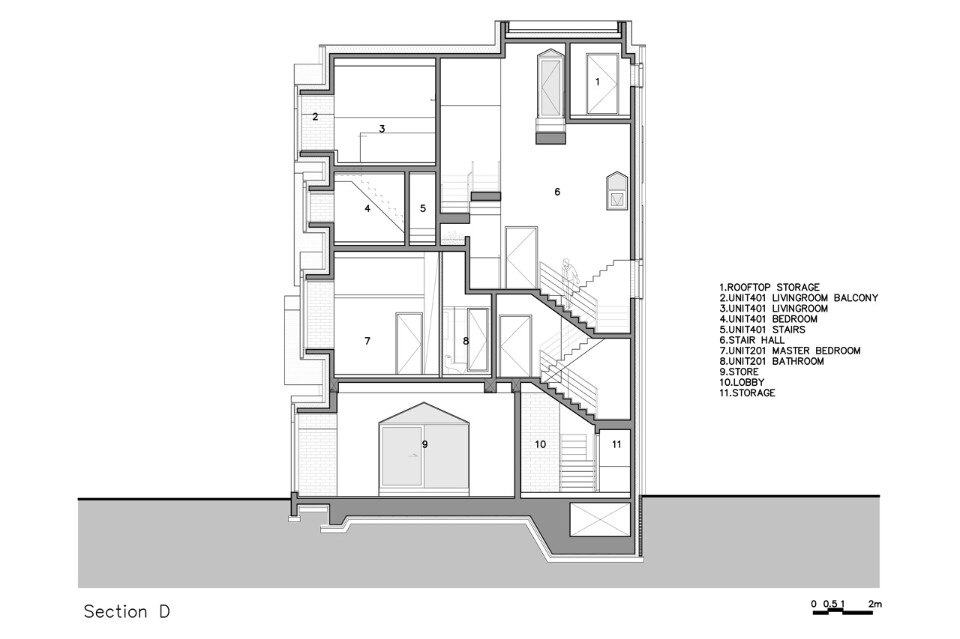
Per fare questo, gli architetti hanno dovuto inventare una sorta di puzzle tridimensionale: una volta inserito il nucleo distributivo centrale, ogni piano aveva 100 mq di superficie libera. La soluzione compositiva prevede quindi tre unità disposte su due piani e due unità a doppia altezza.
Galleria
AND (Architecture of Novel Differentiation), The Gablepack, Kyeonggi-do, Corea. Prospetto
AND (Architecture of Novel Differentiation), The Gablepack, Kyeonggi-do, Corea. Sezione
AND (Architecture of Novel Differentiation), The Gablepack, Kyeonggi-do, Corea. Sezione
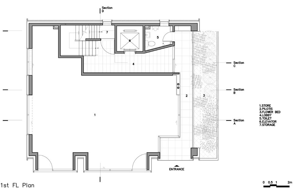
AND (Architecture of Novel Differentiation), The Gablepack, Kyeonggi-do, Corea. Pianta del piano terra
The Gablepack, Kyeonggi-do, Corea
Tipologia: edificio per appartamenti
Architetti: AND (Architecture of Novel Differentiation)
Responsabile di progetto: Yeonji Kim
Consulenza strutturale: THE Structural Engineering Co.
Area: 145 mq
Completamento: 2015
